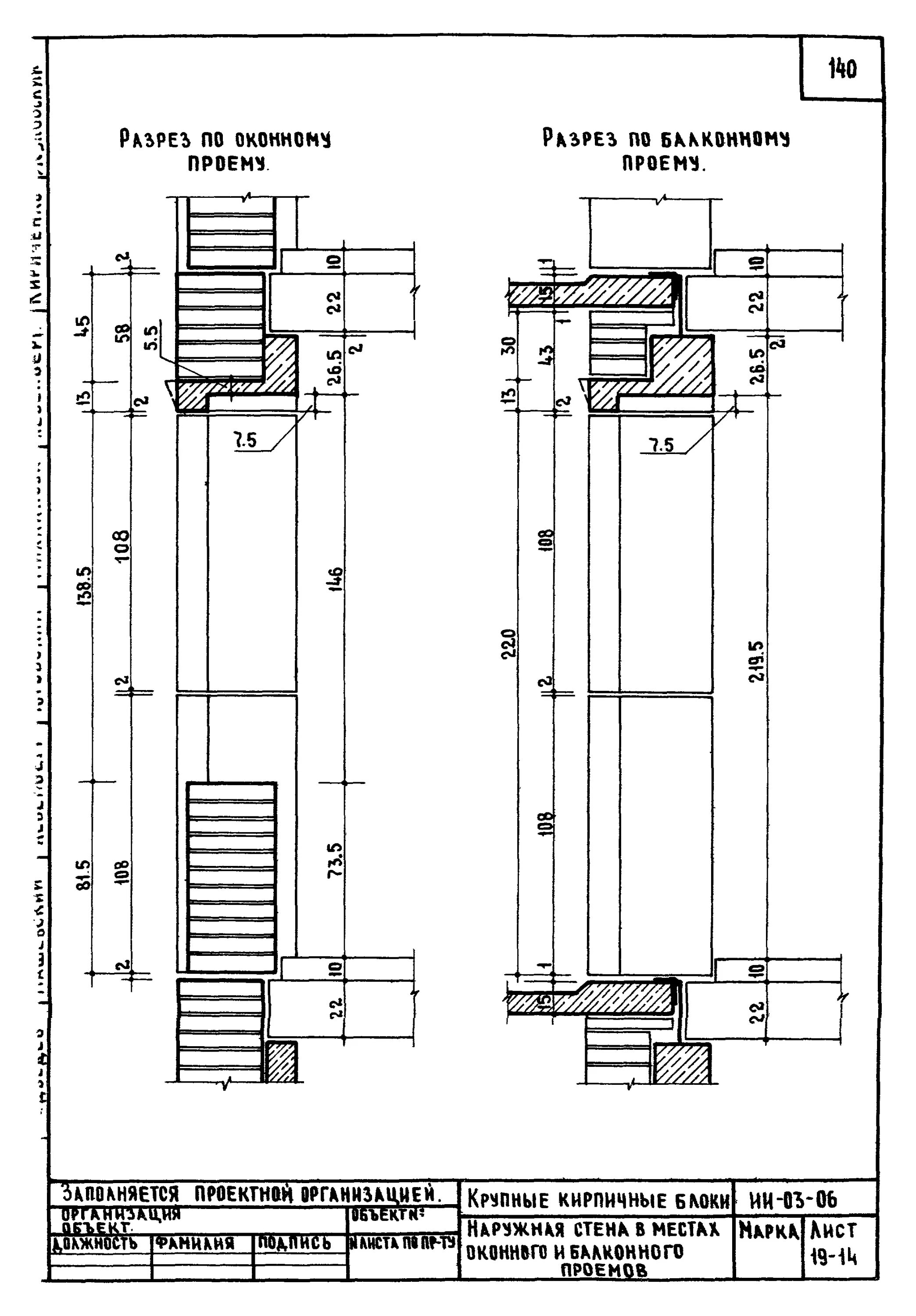
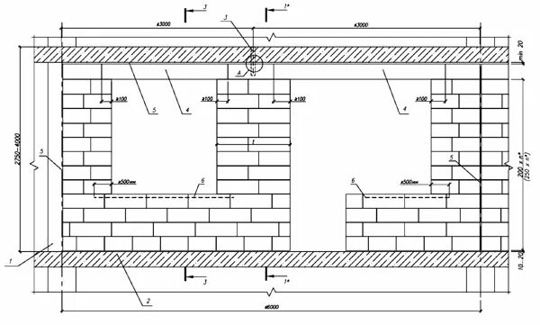
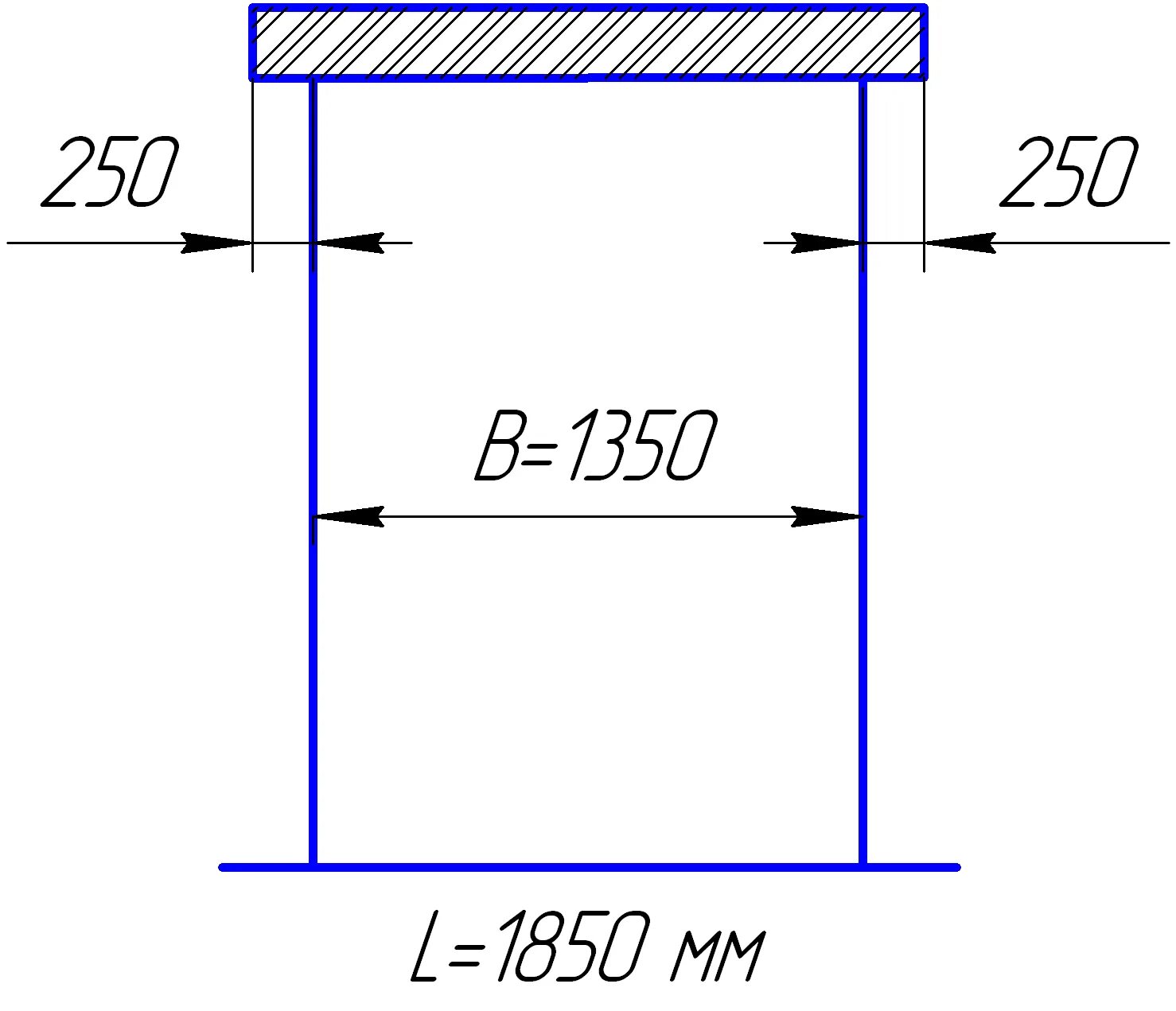
Проем в кирпичной стене размеры