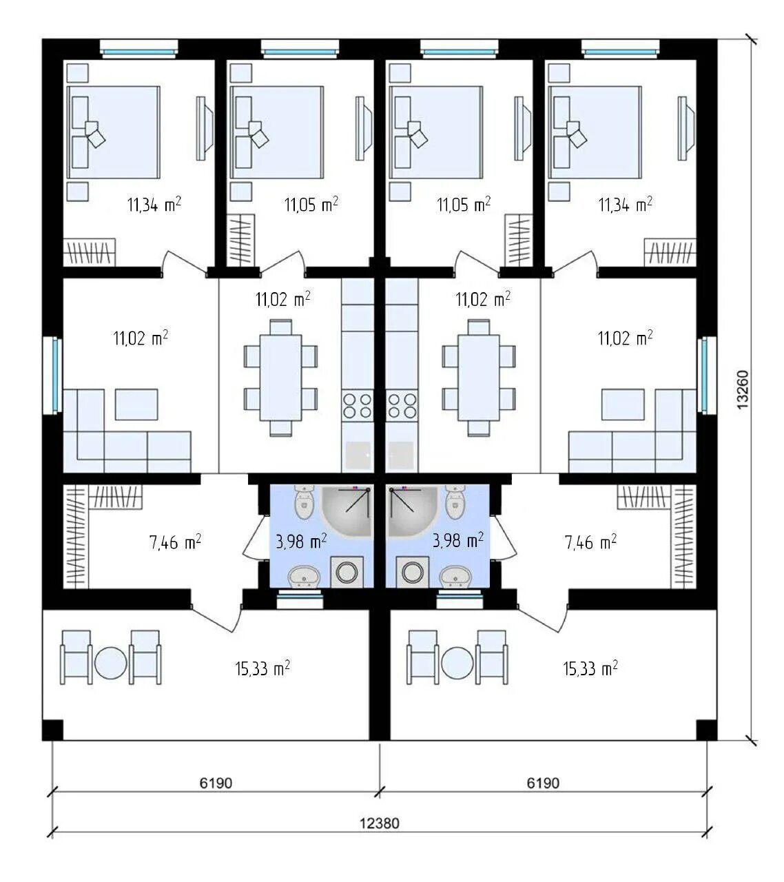
Проекты одноэтажных домов на две семьи