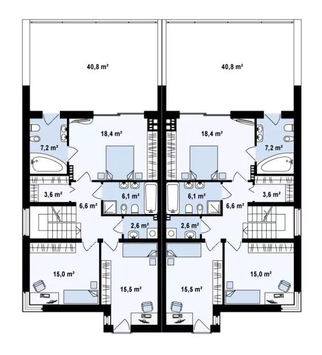
Проекты одноэтажные на два хозяева