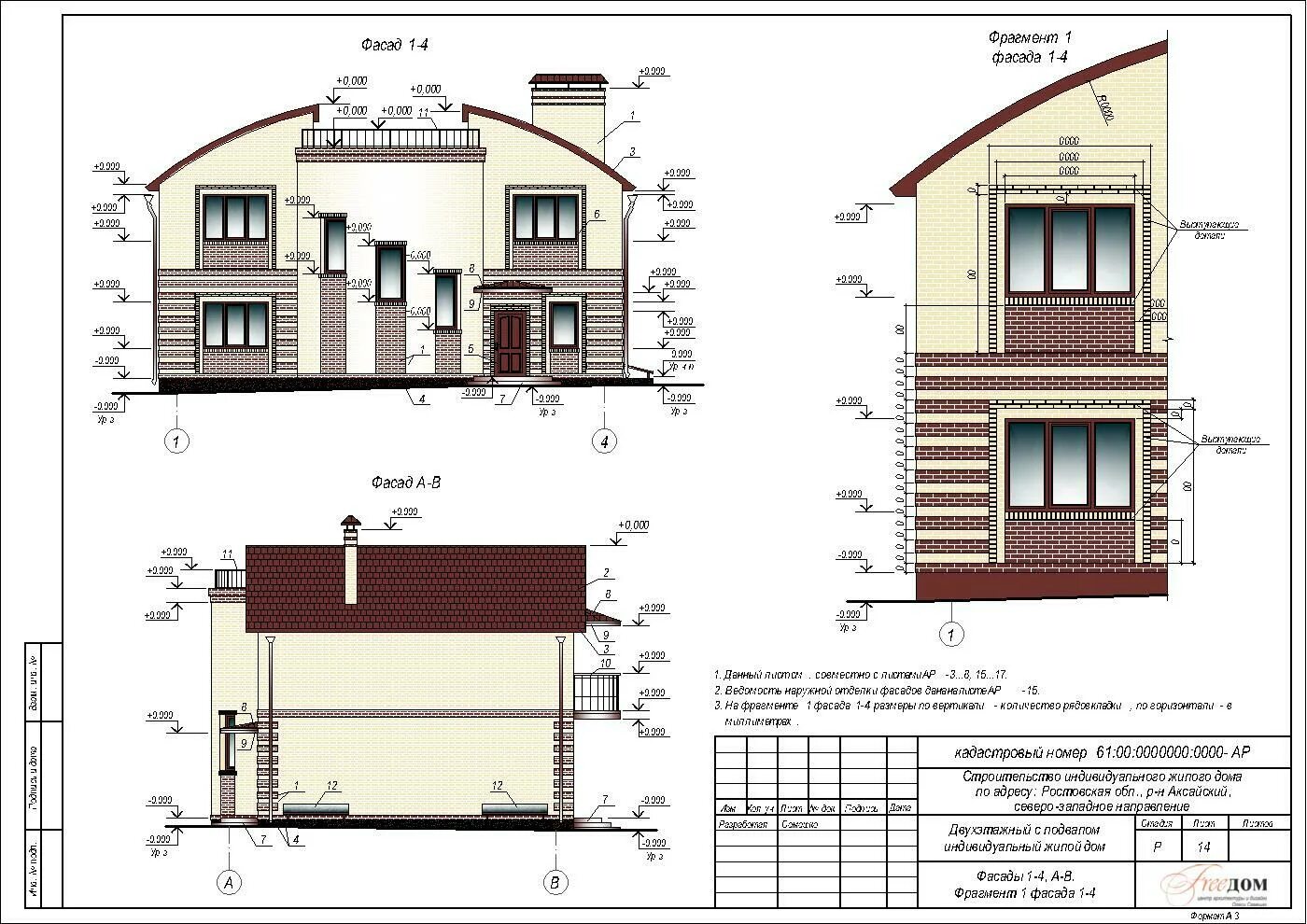
Проекты фасадов пример