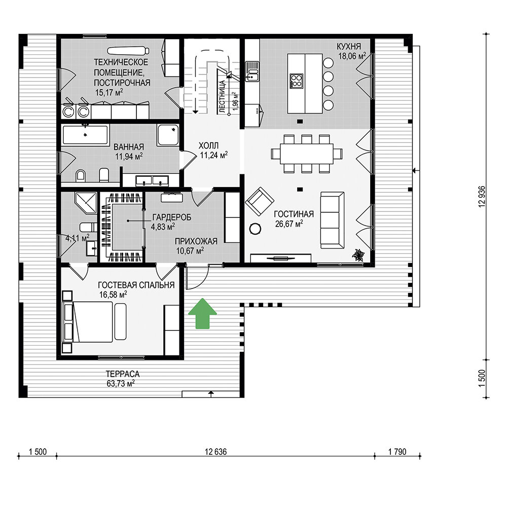
Проекты двухэтажных зданий