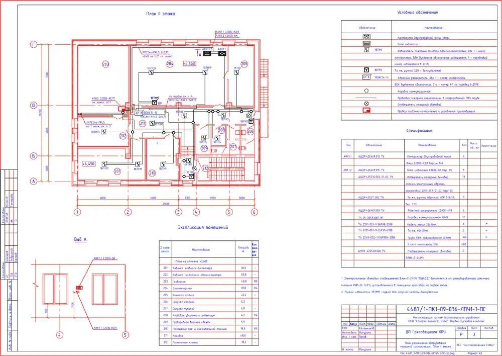
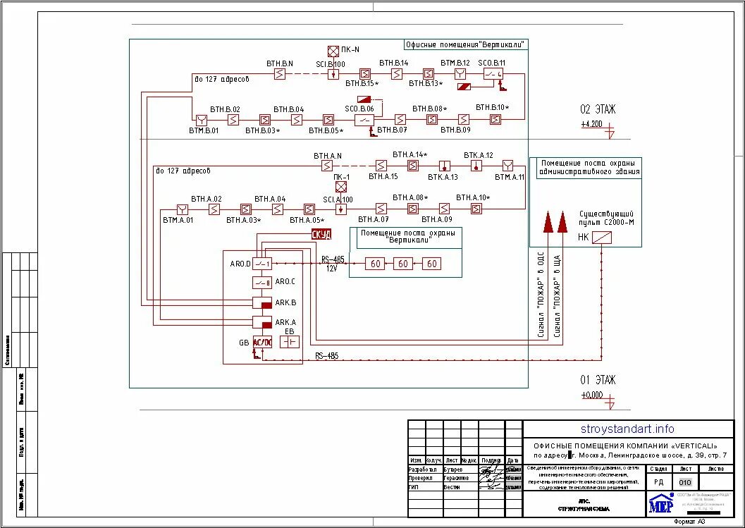
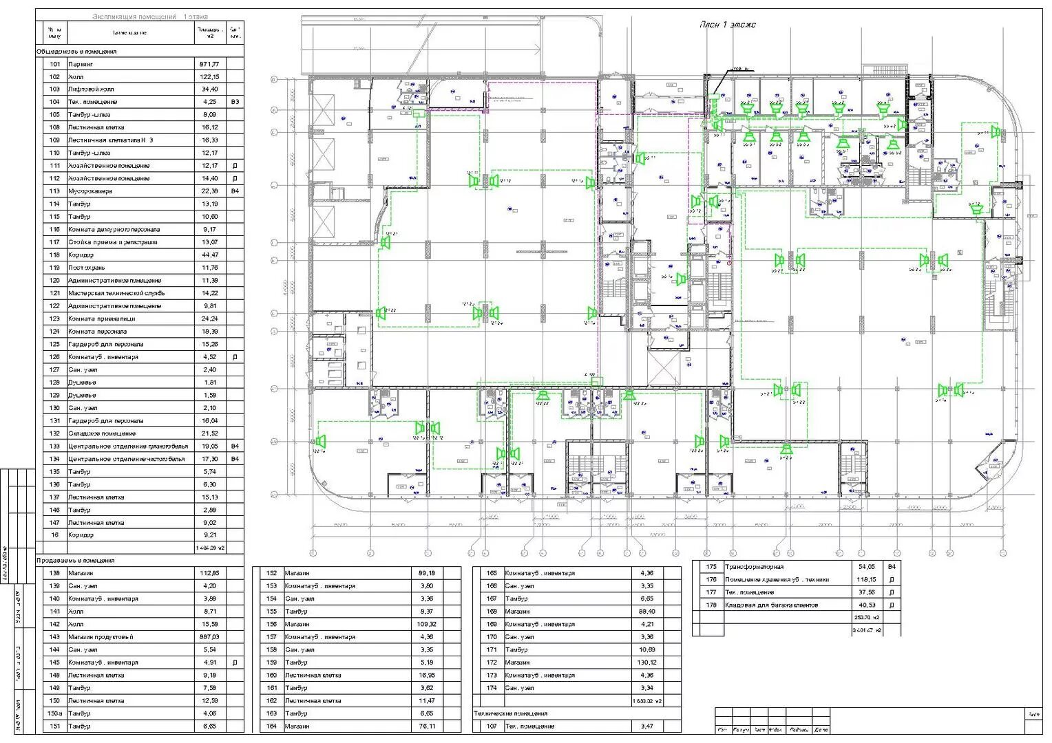
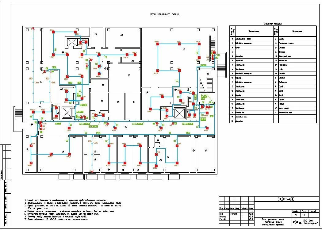
Проектная документация система пожарной сигнализации