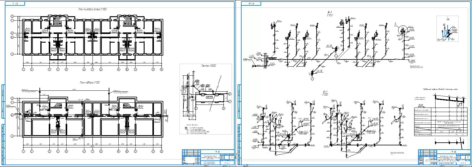
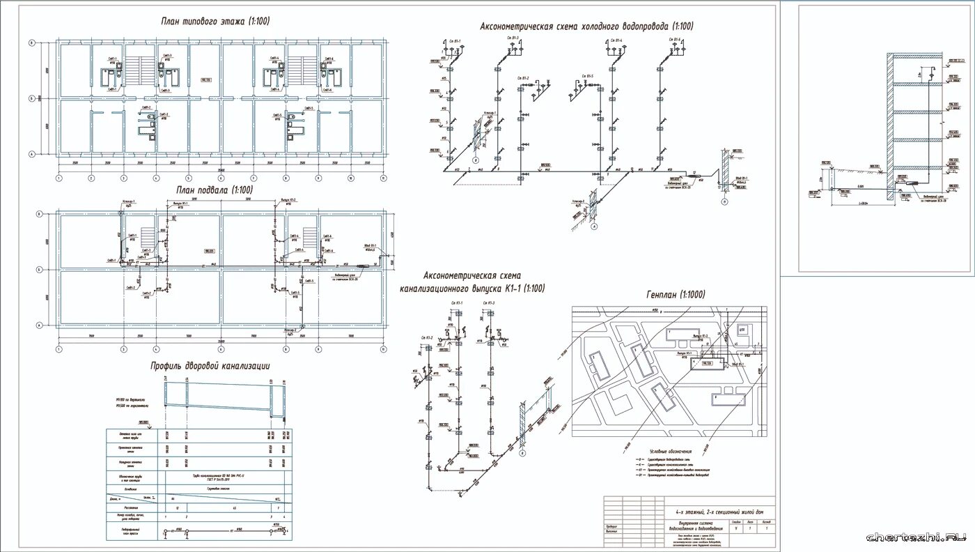
Проектирование внутренних систем канализации