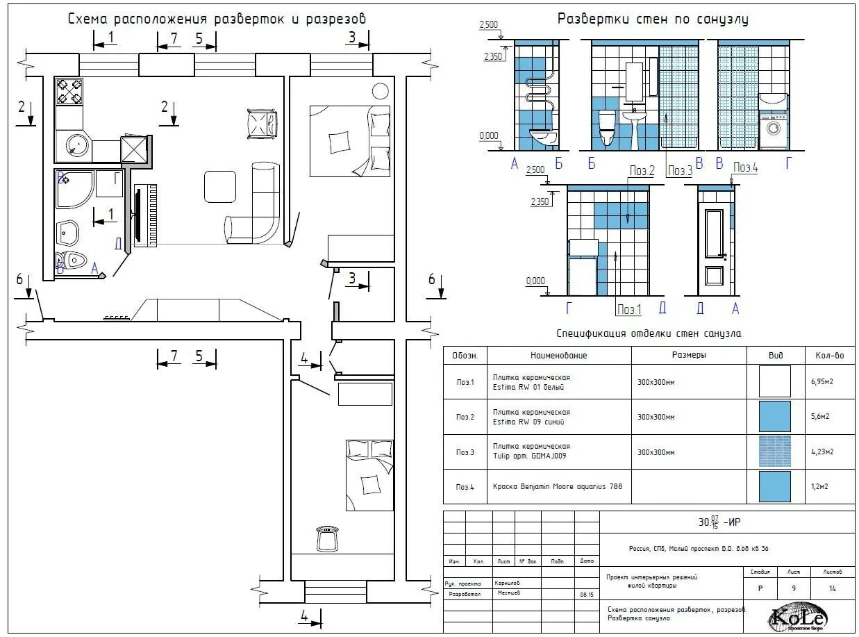
Проектирование рабочего чертежа