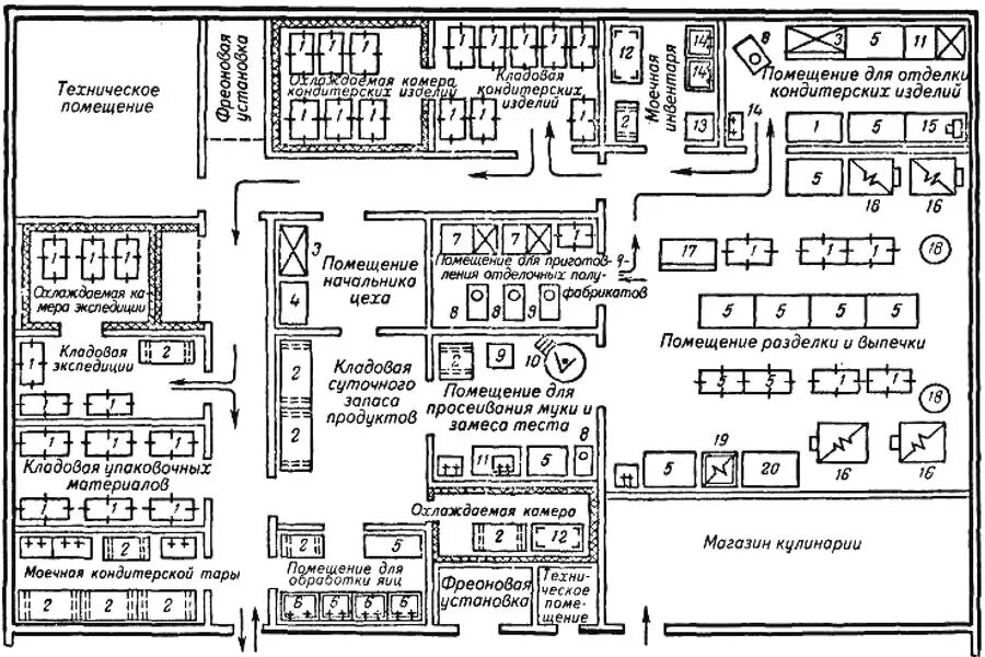
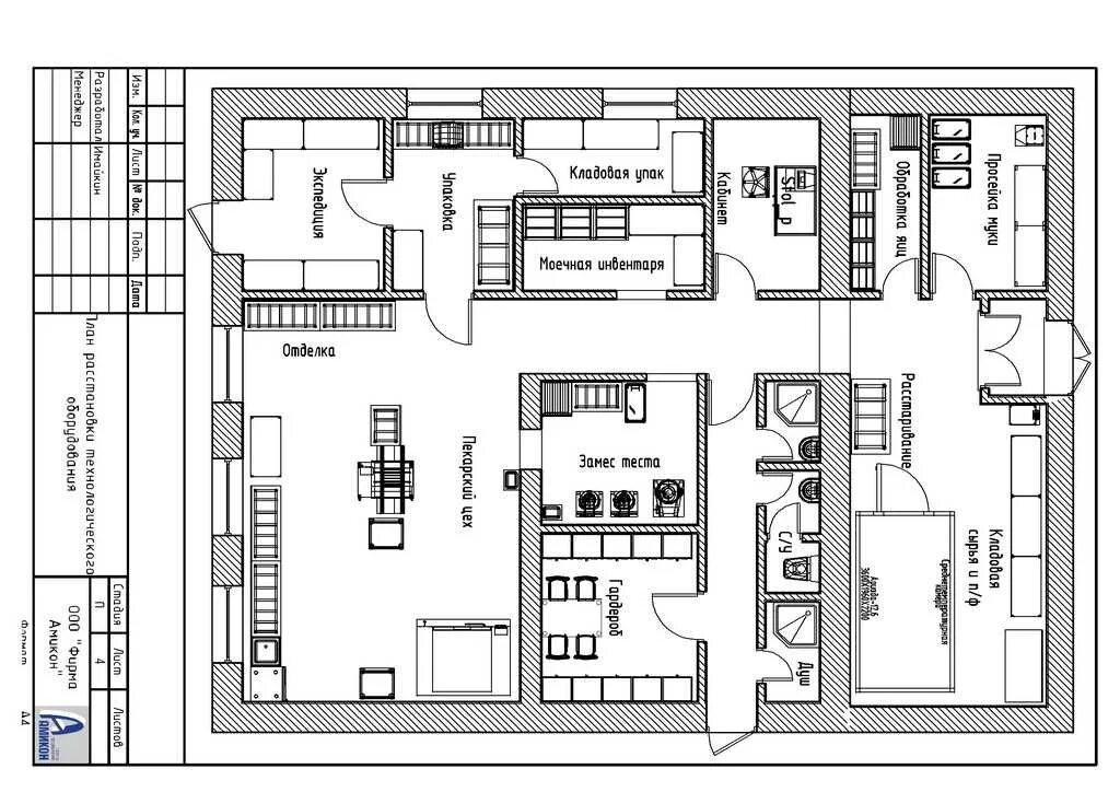
Проектирование предприятия питания