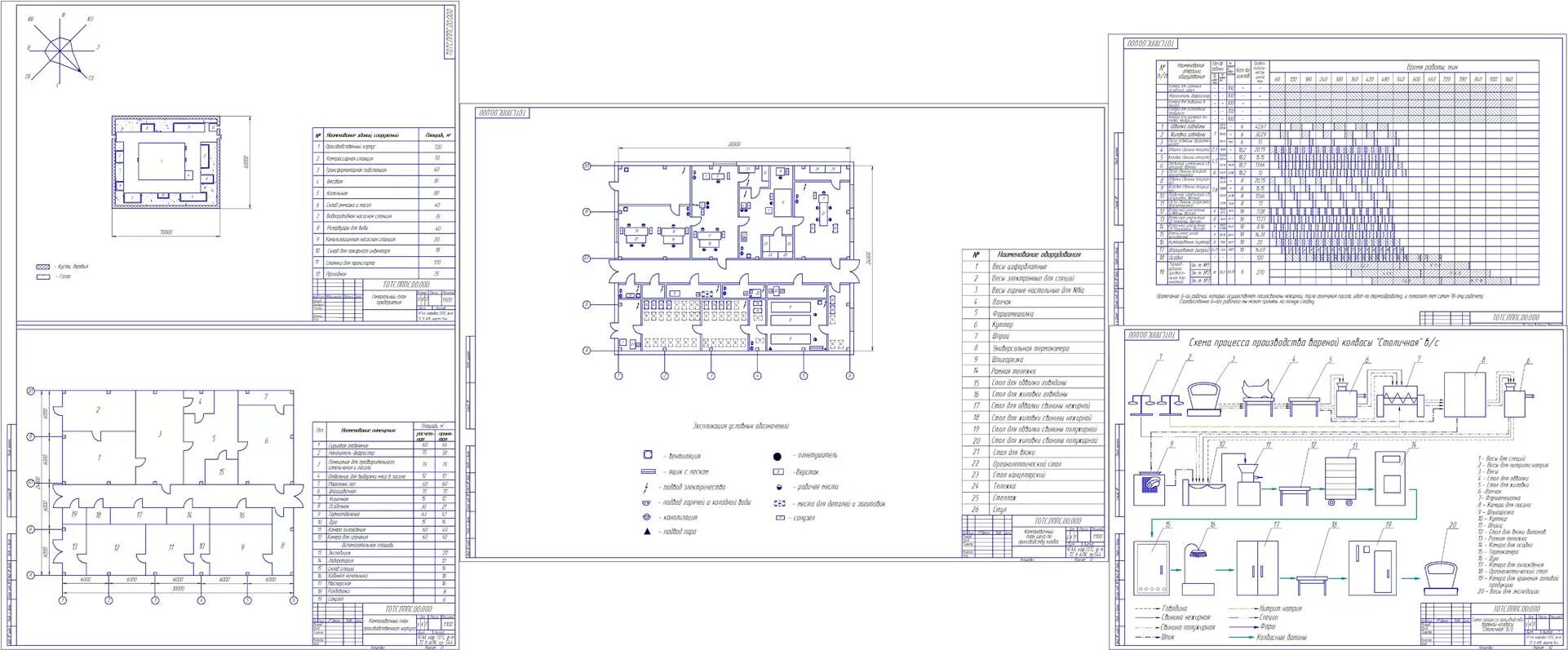
Проектирование мясного предприятия