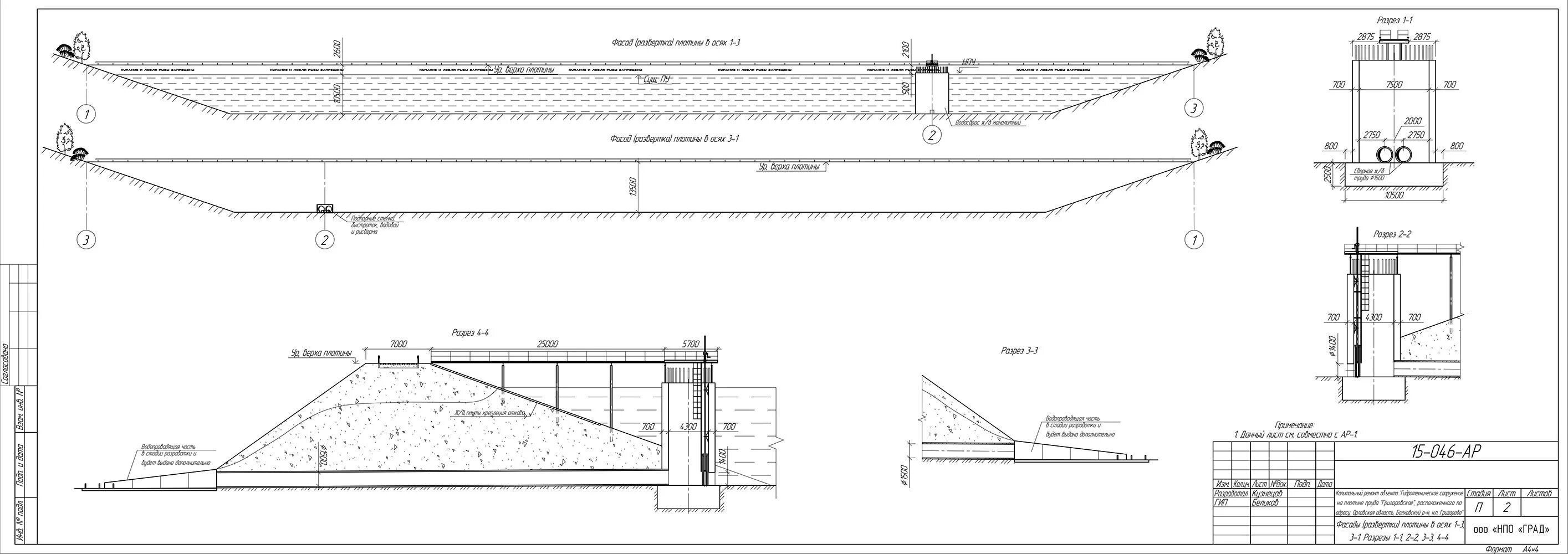
Проектирование гтс