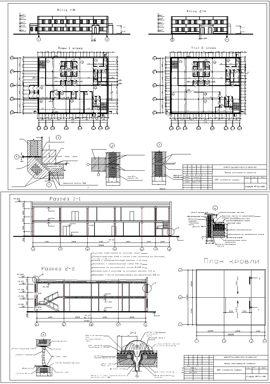
Проектирование административно бытовых зданий