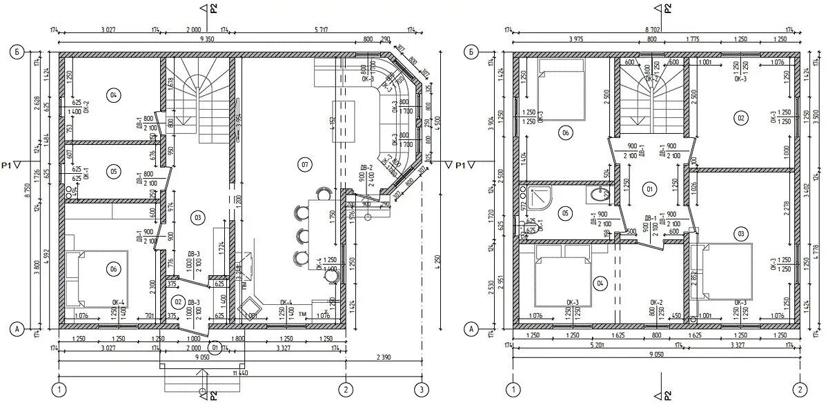
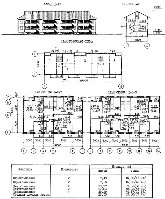
Проект здания схема