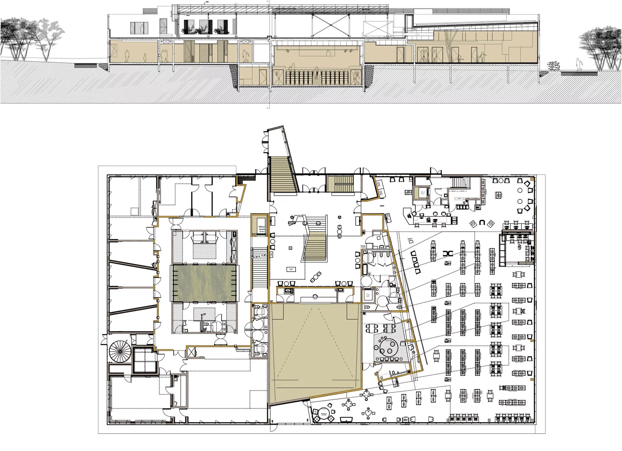
Проект здания библиотеки