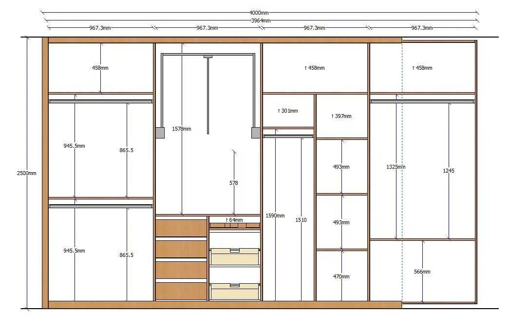
Проект шкафа в прихожую