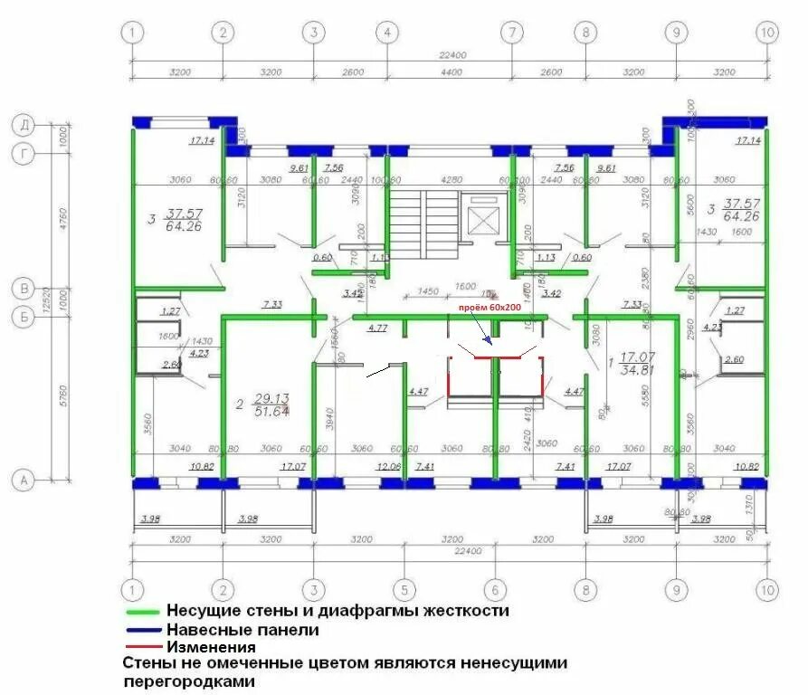
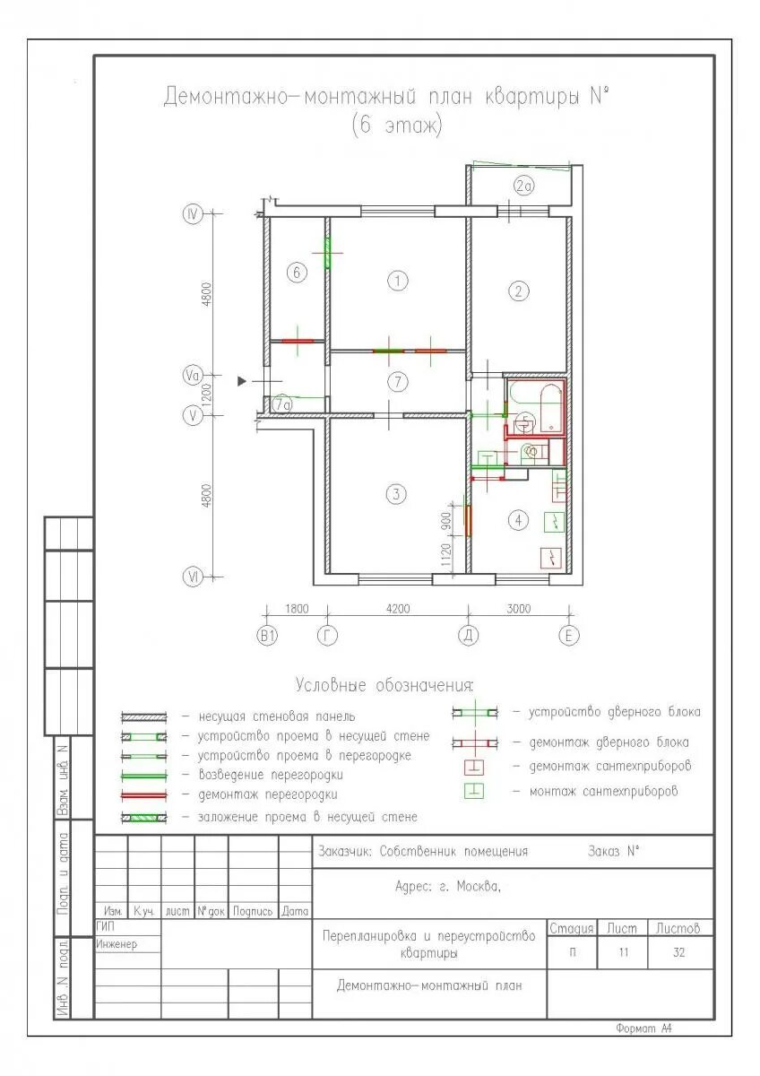
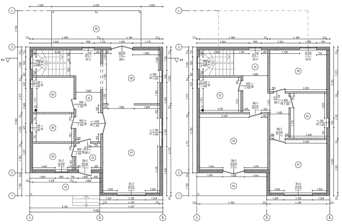
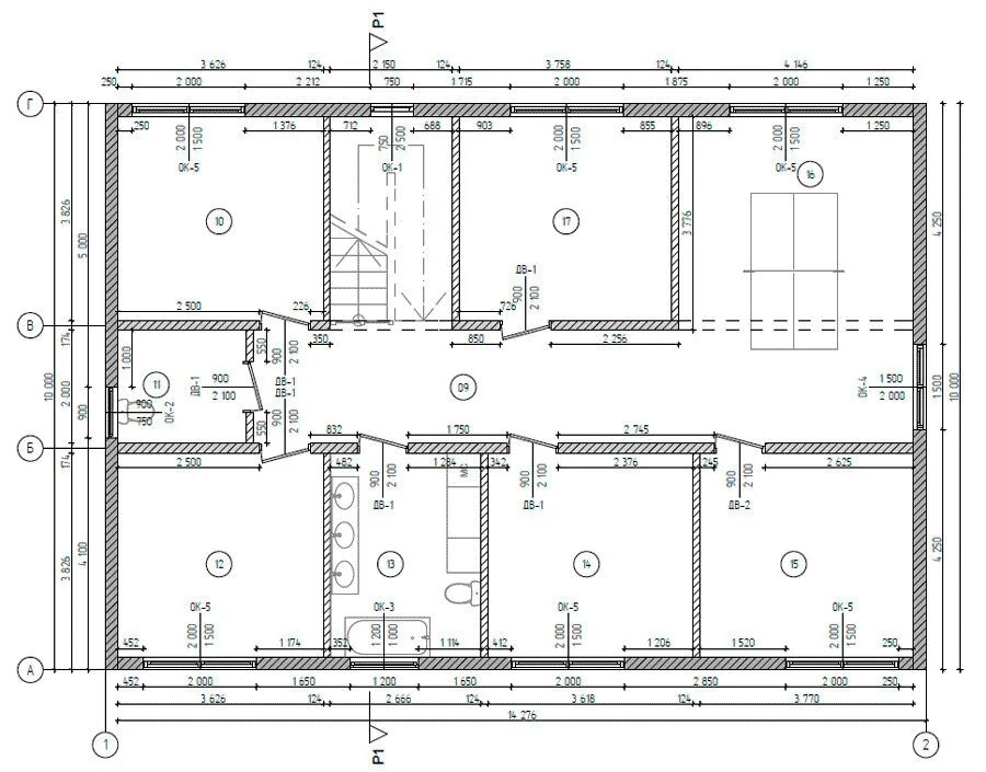
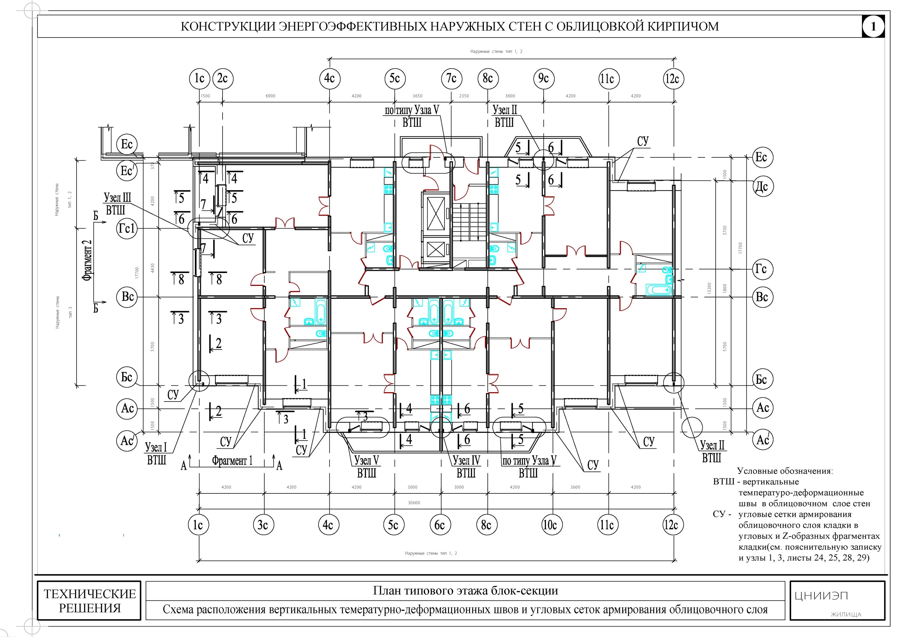
Проект дома несущие стены