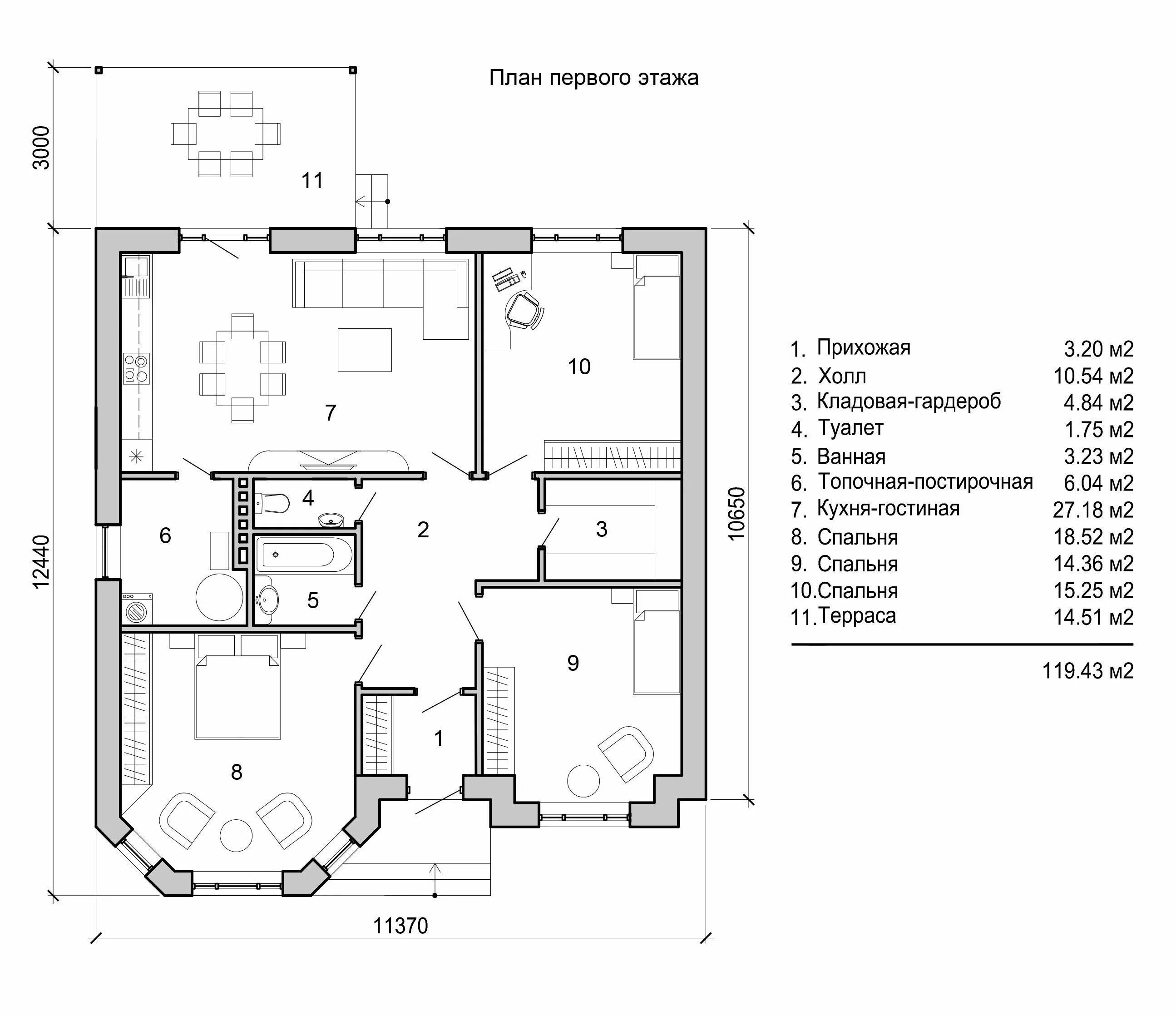
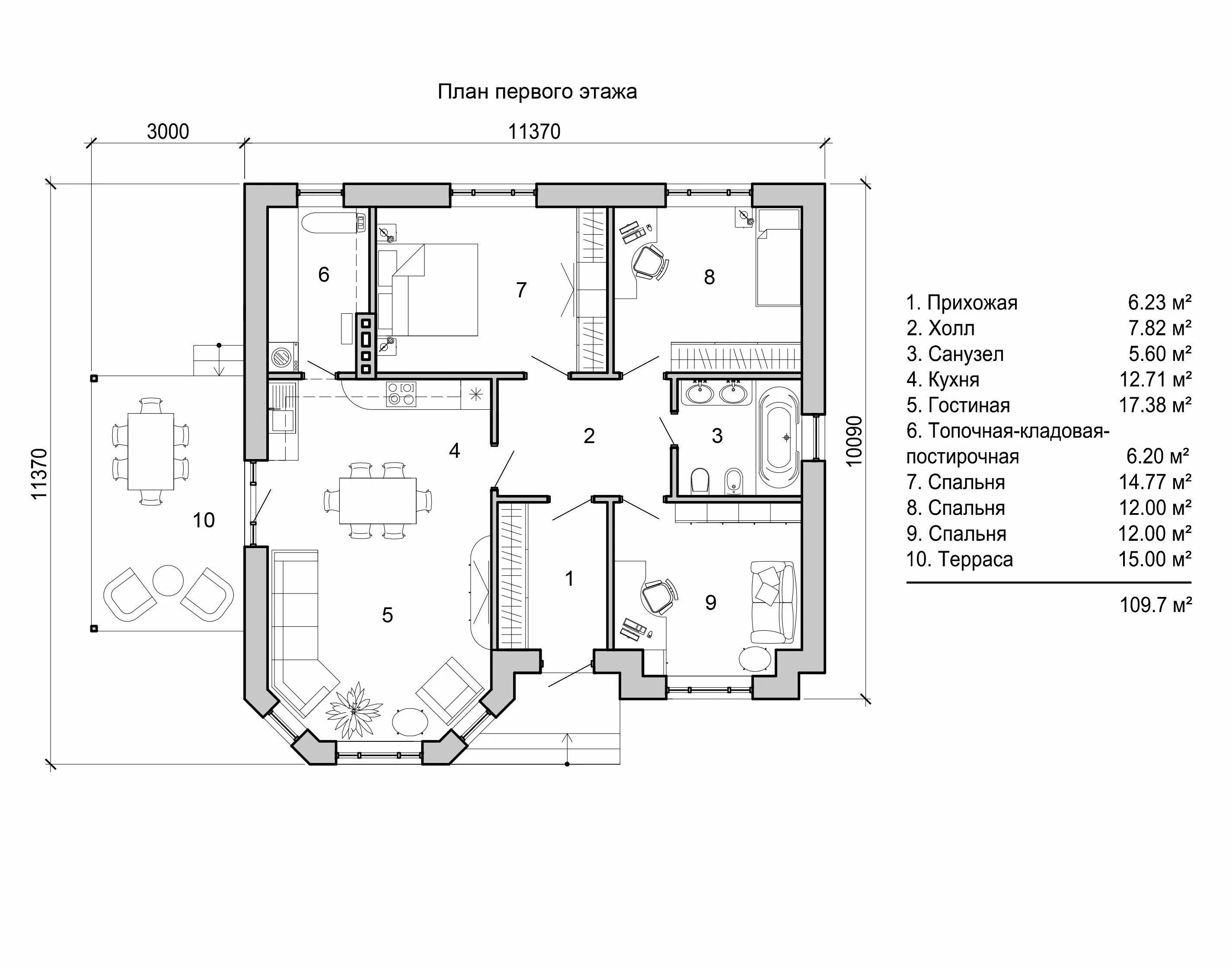
Проект дома чертеж одноэтажный