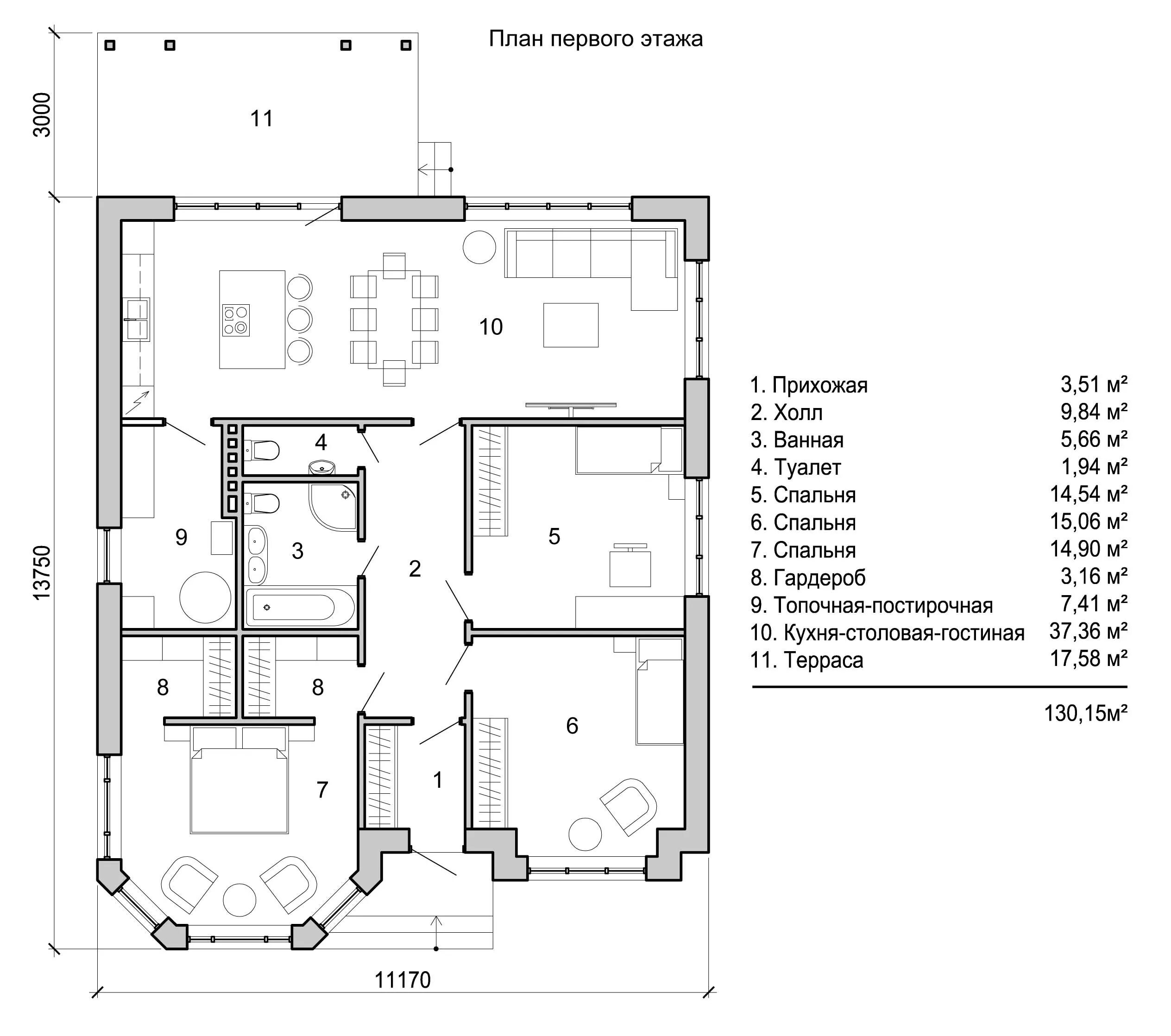
Проект 1 этаж