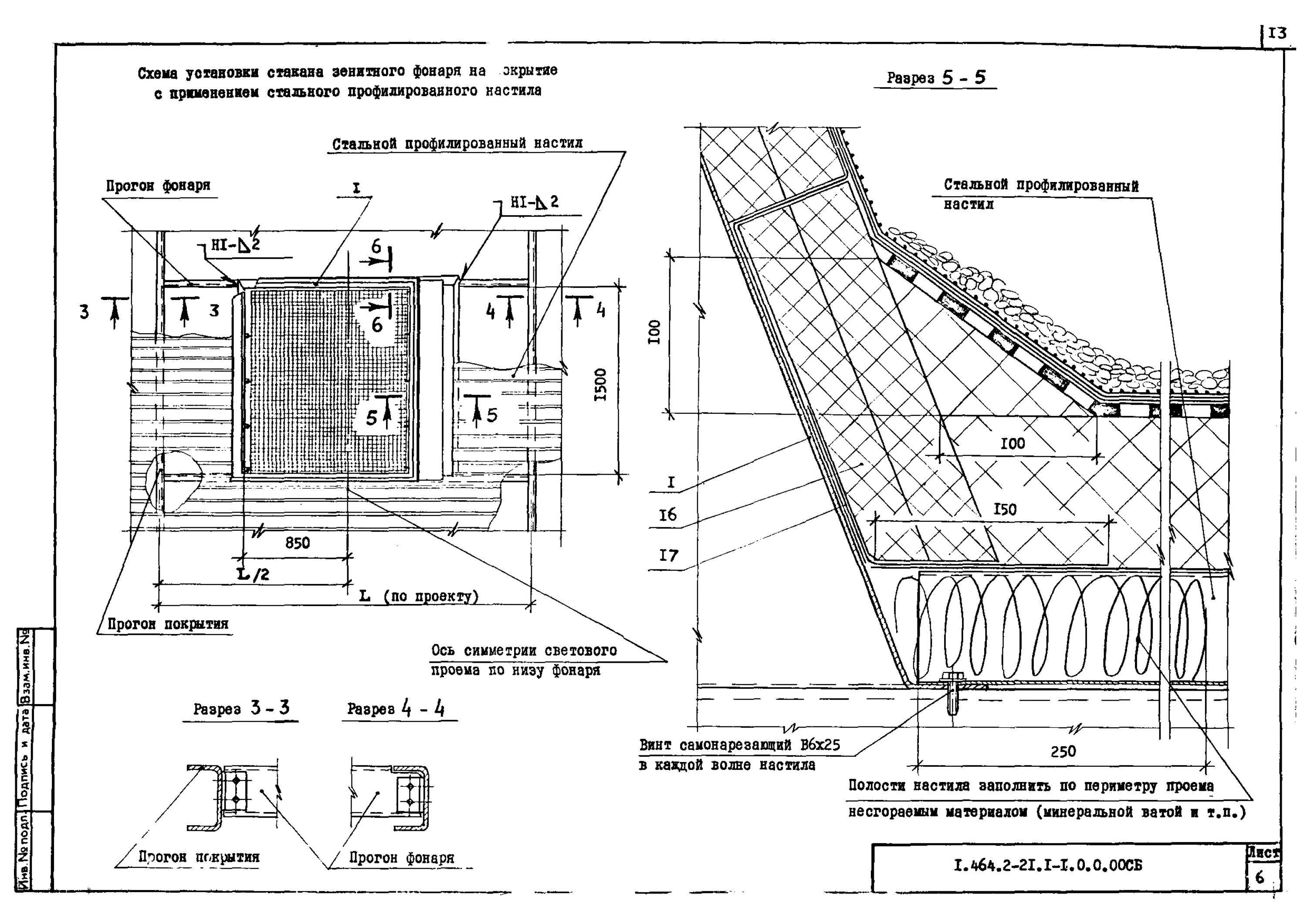
Прочитайте текст установка зенитных фонарей расположенный справа