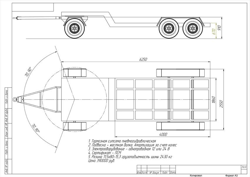
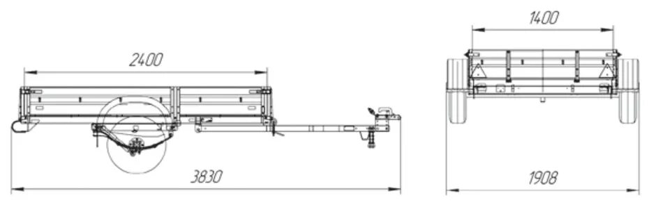
Прицеп размер дышла