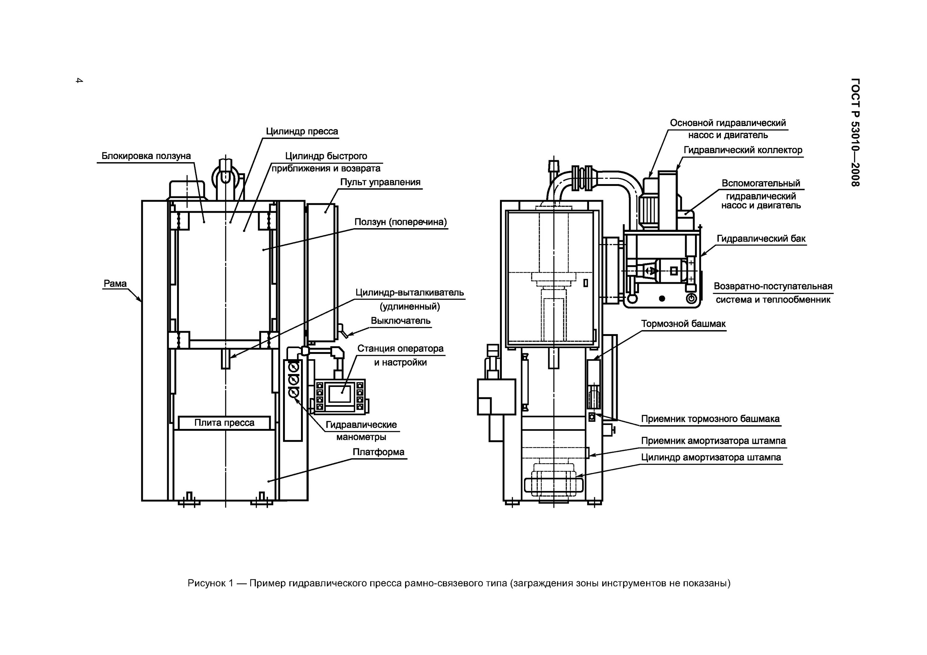
Принцип работы прессов