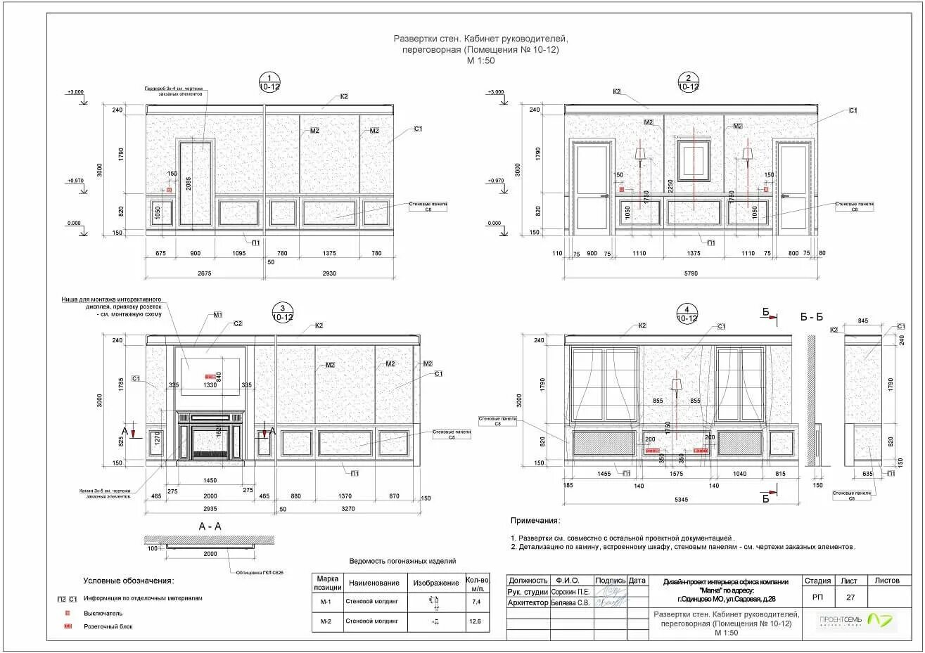
Пример развертки