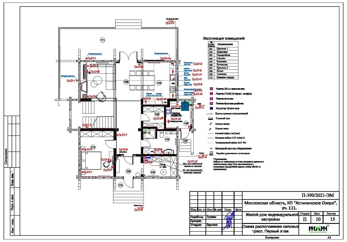
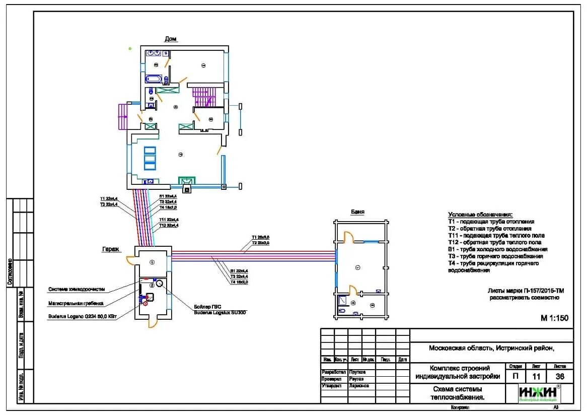
Пример проекта 11