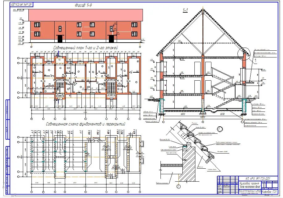
Пример чертежа здания