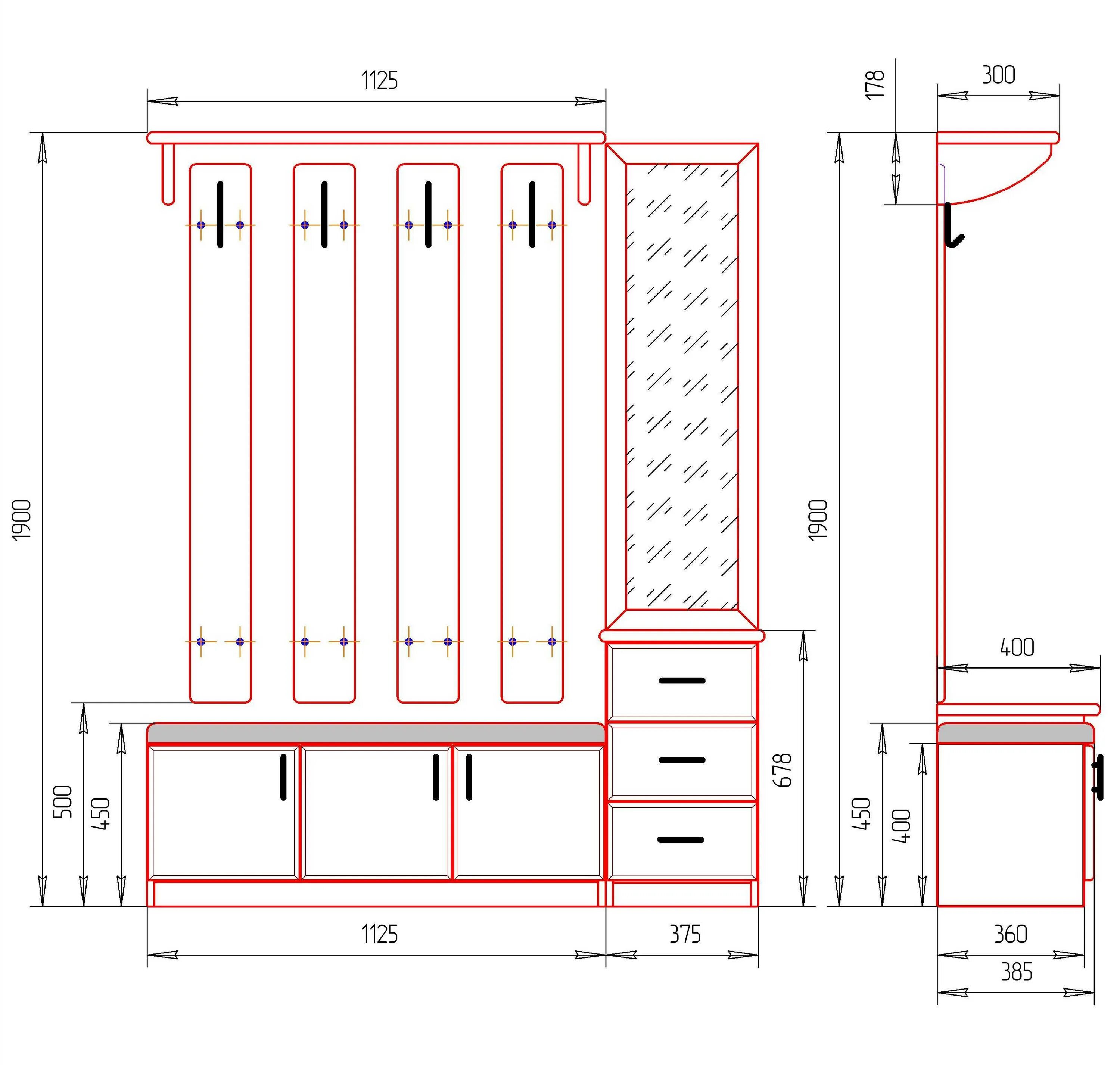
Прихожая размеры