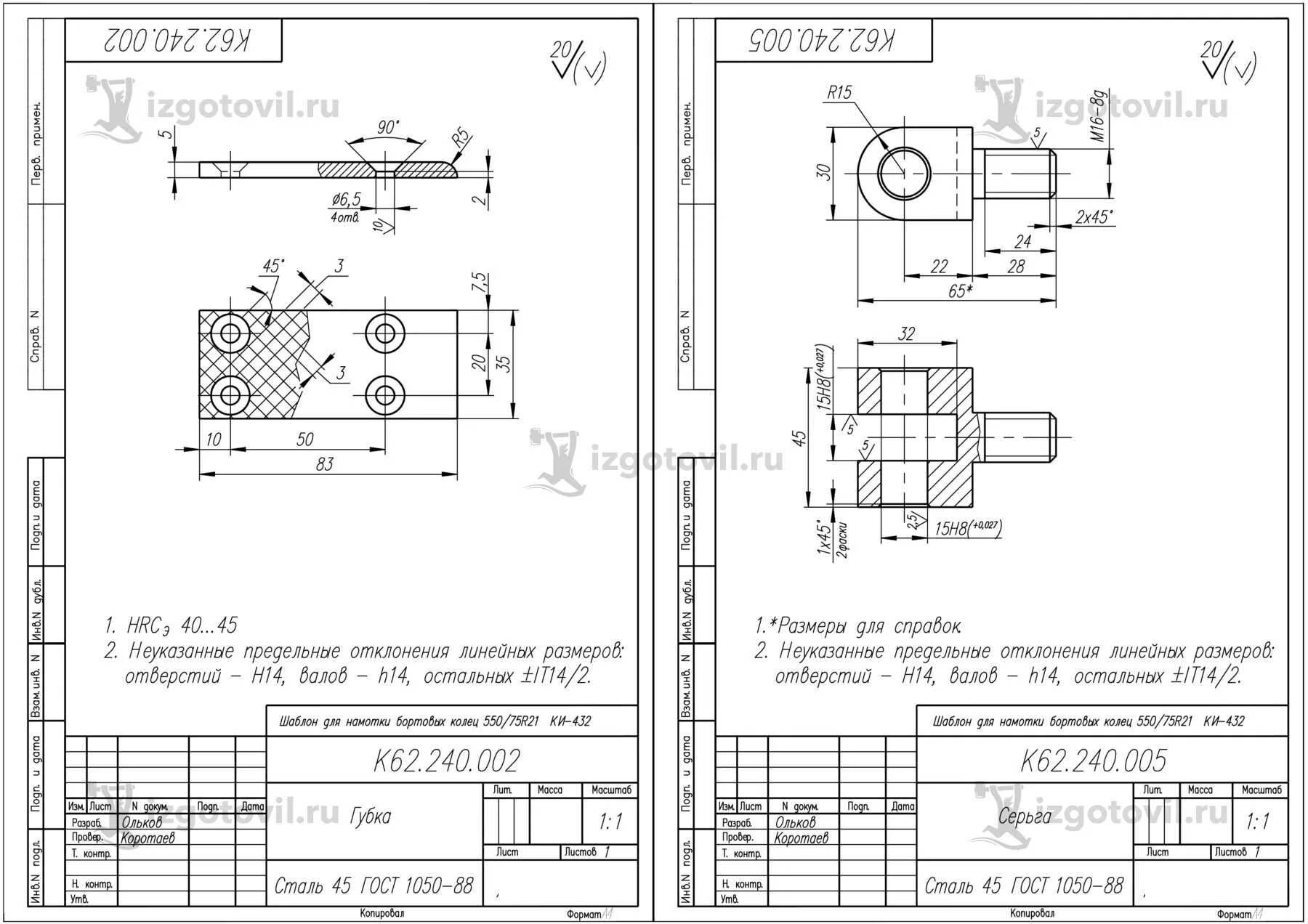
Предельное отклонение h14 2