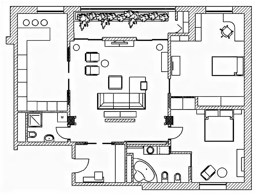
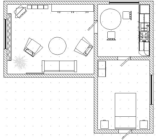
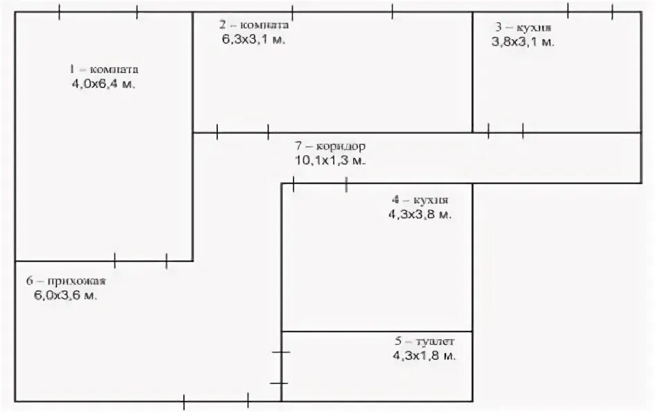
Постройте графическую модель вашей комнаты