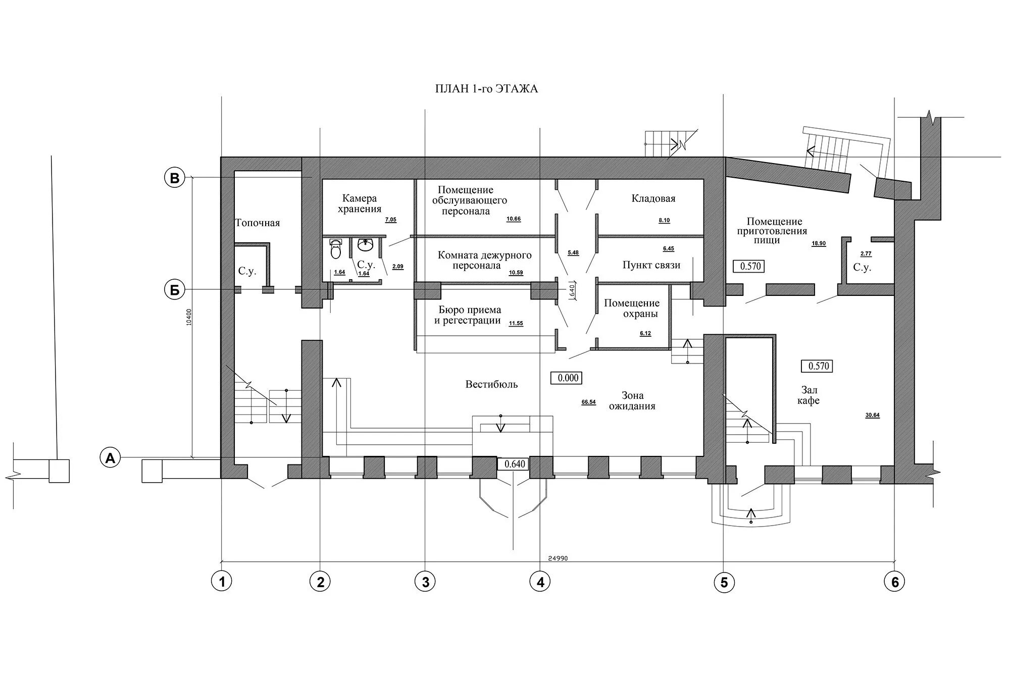
Помещение общественного назначения 1