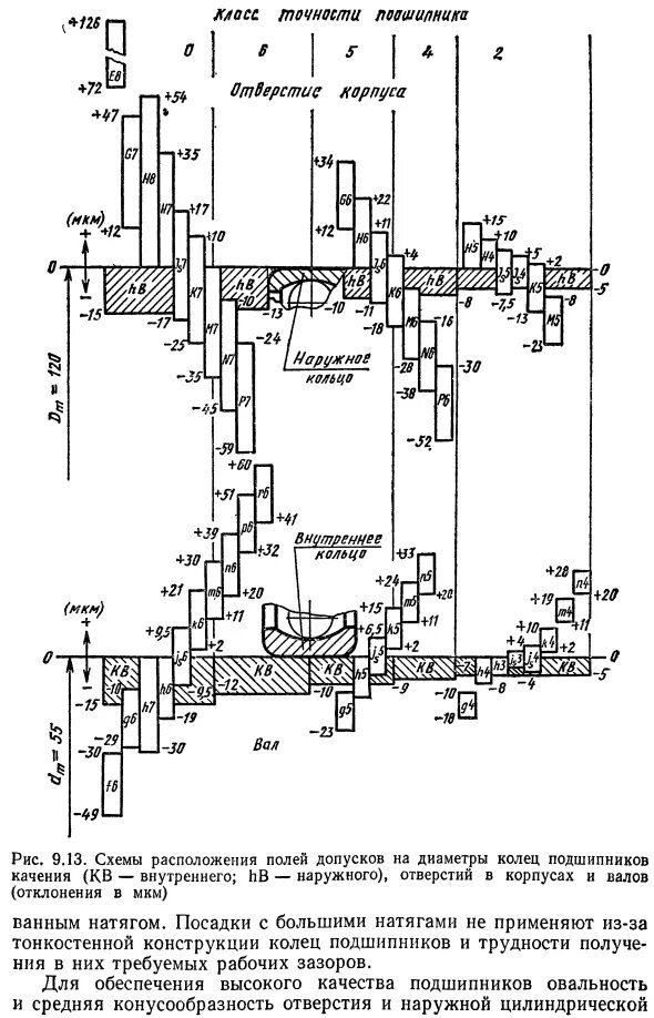
Поля допусков подшипников