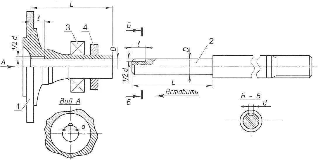
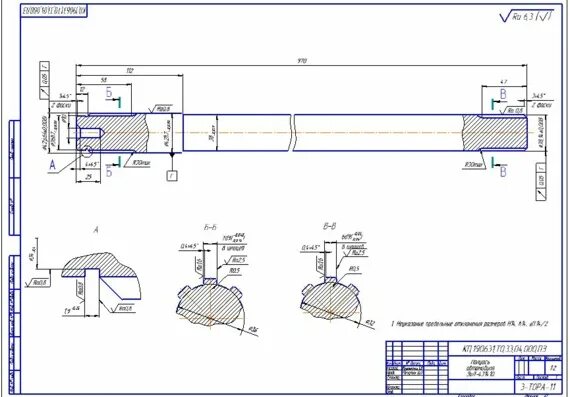
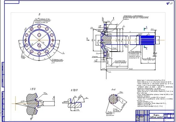
Полуось заднего моста размеры