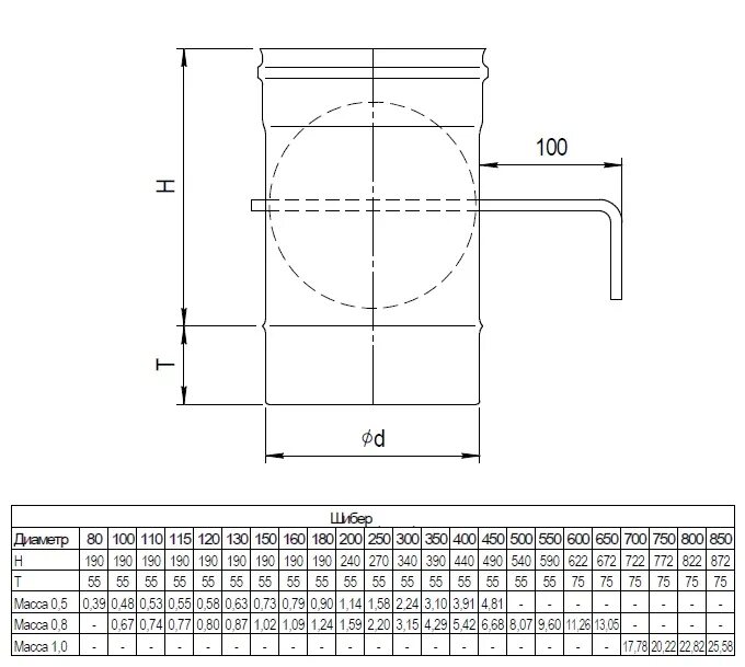
Положение шибера открыт