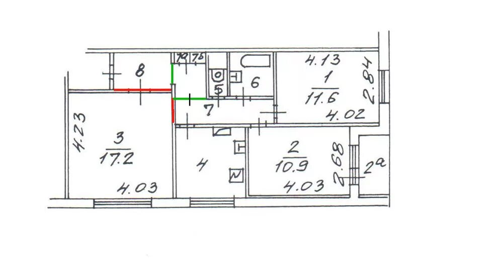
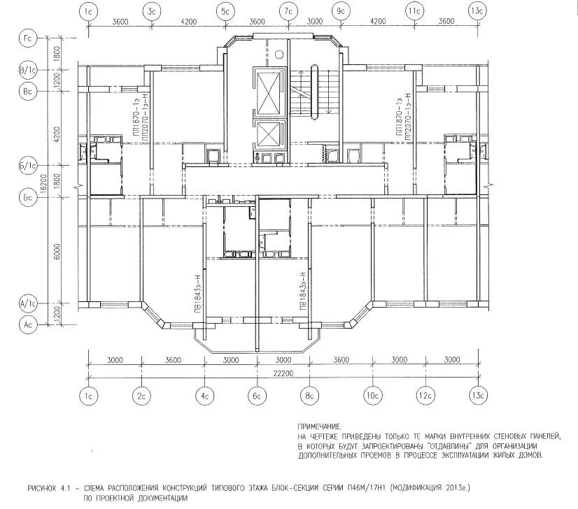
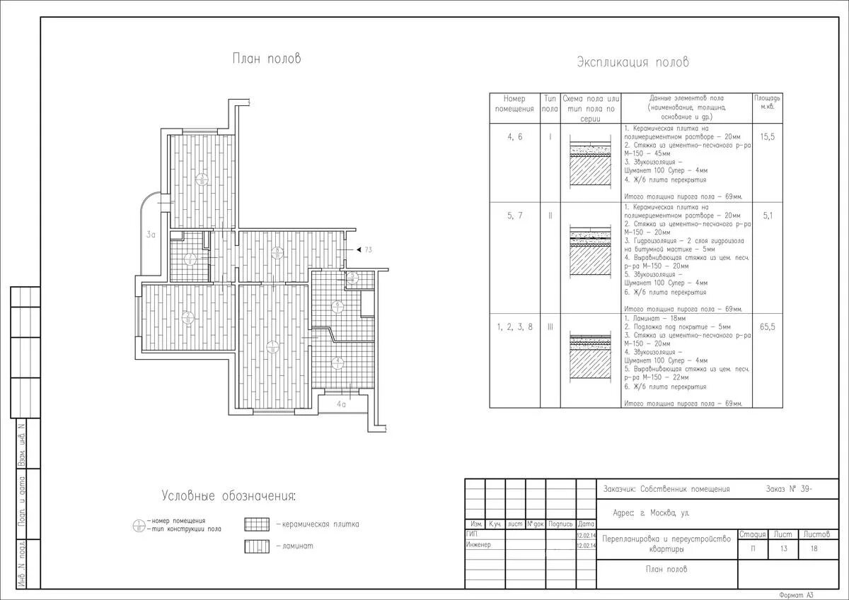
Положение 809 п план