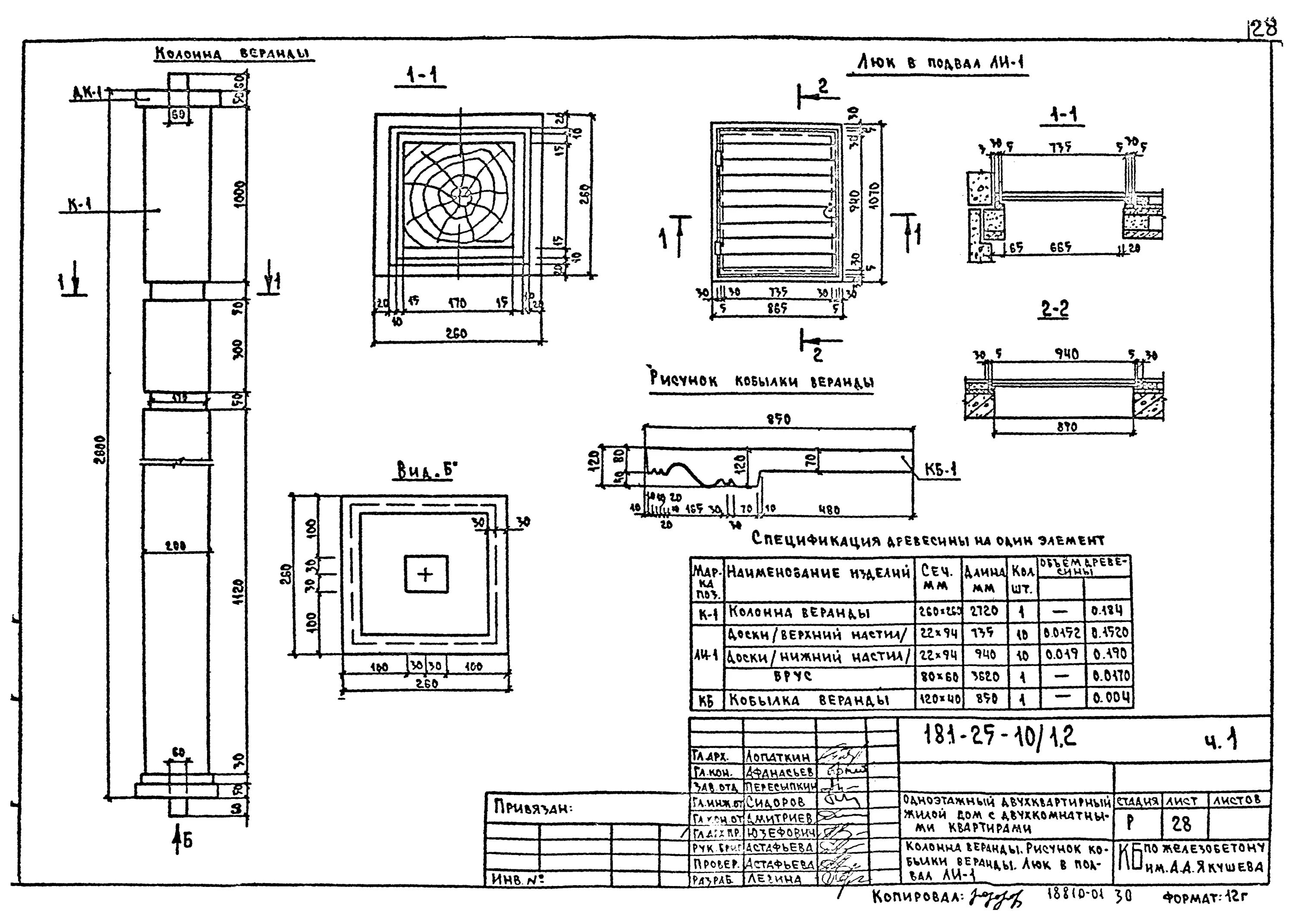
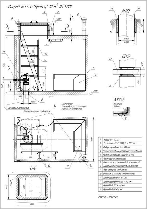
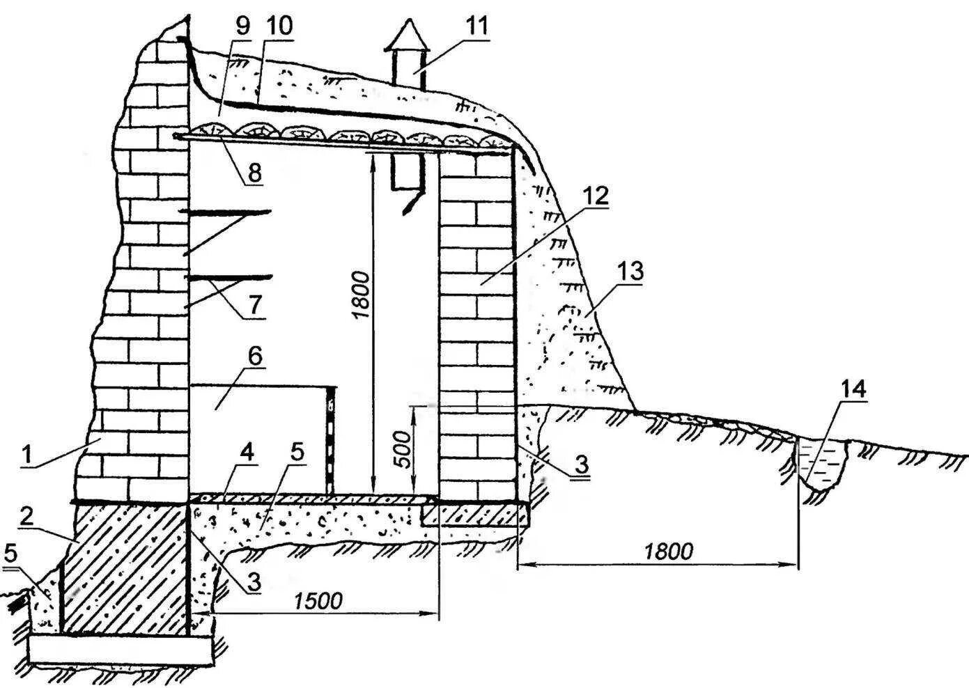
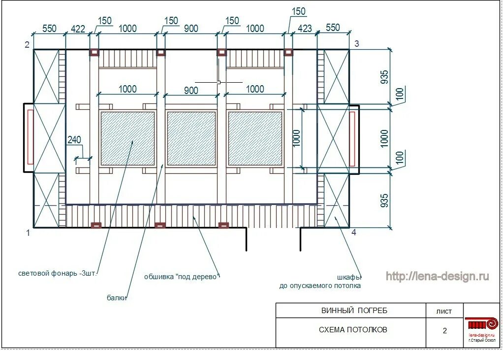
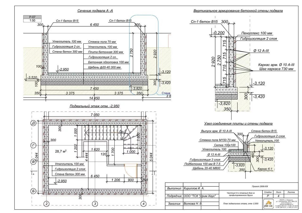
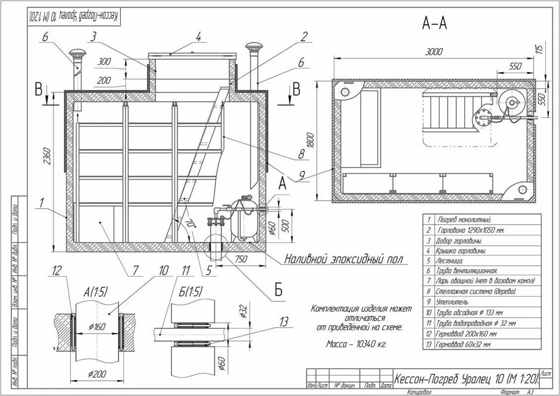
Подвалы размеры