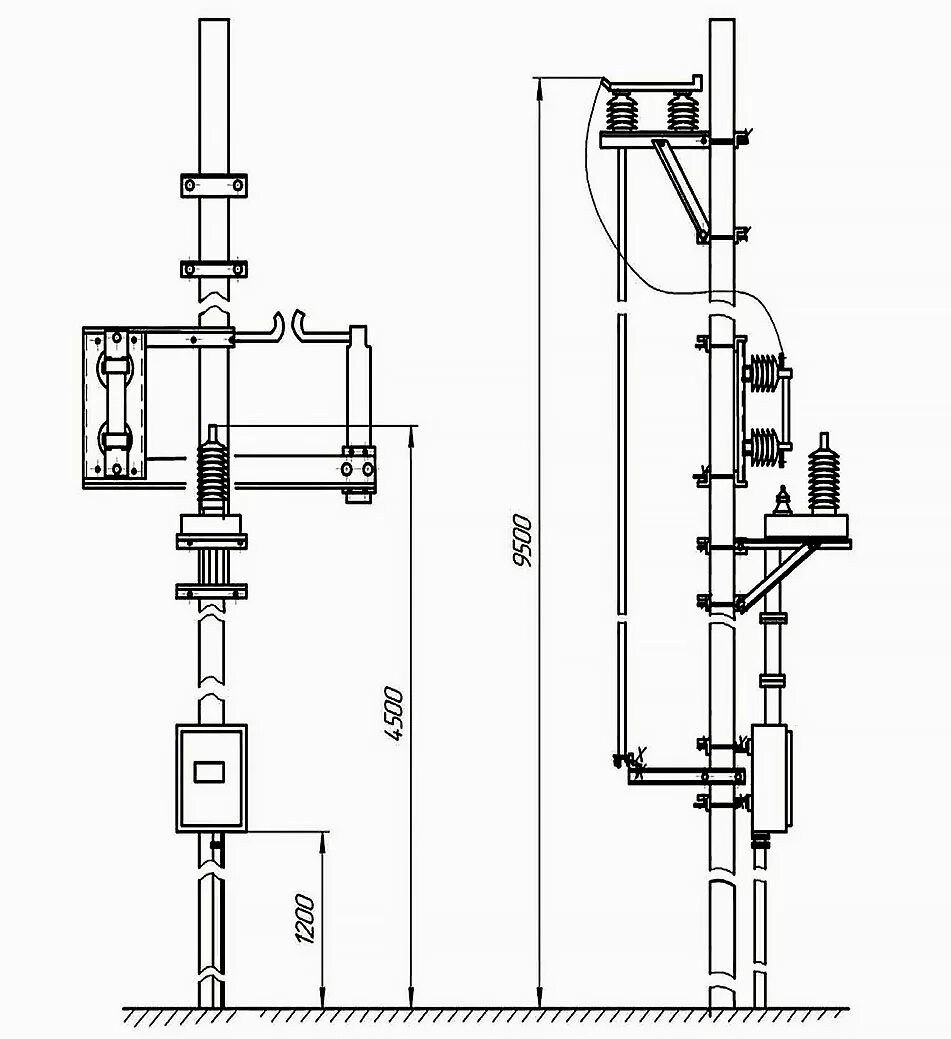
Подстанция столбового типа