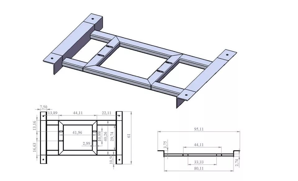
Подрамник раздатки