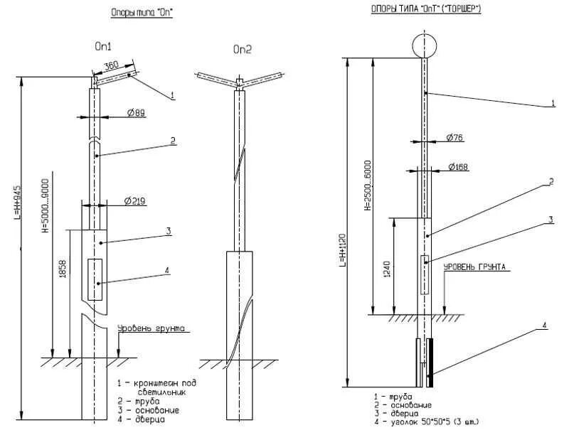
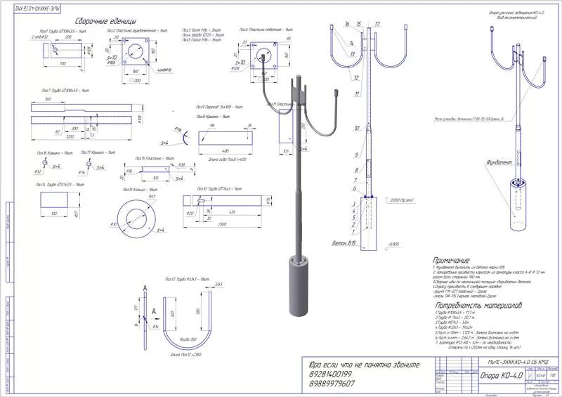
Подключение опор освещения