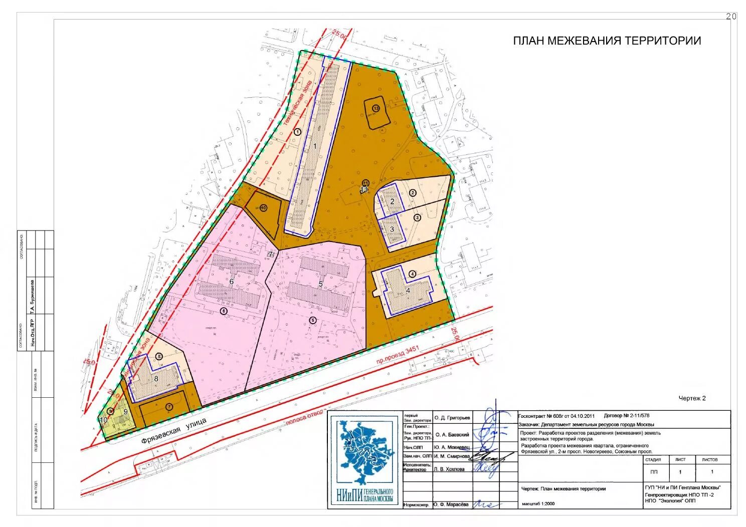
Подготовка проекта межевания земельных участков