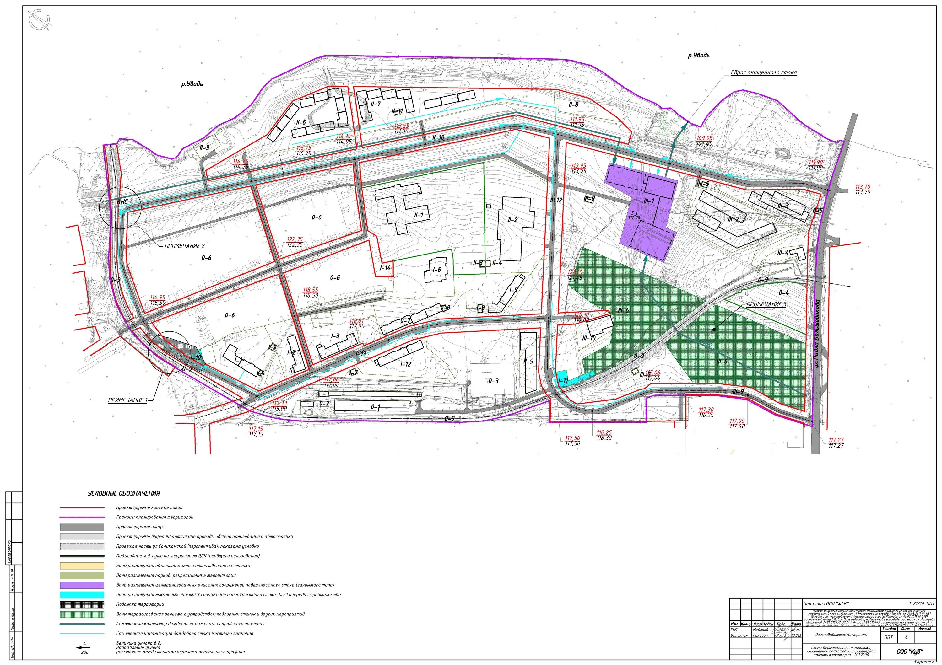
Подготовка и планирование территории