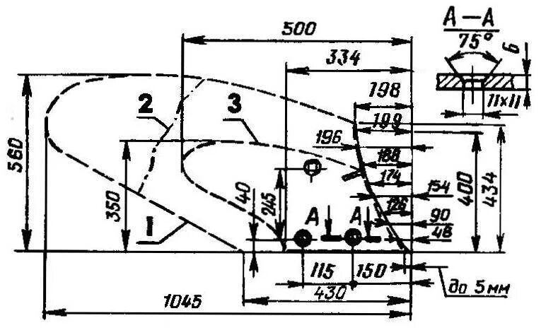
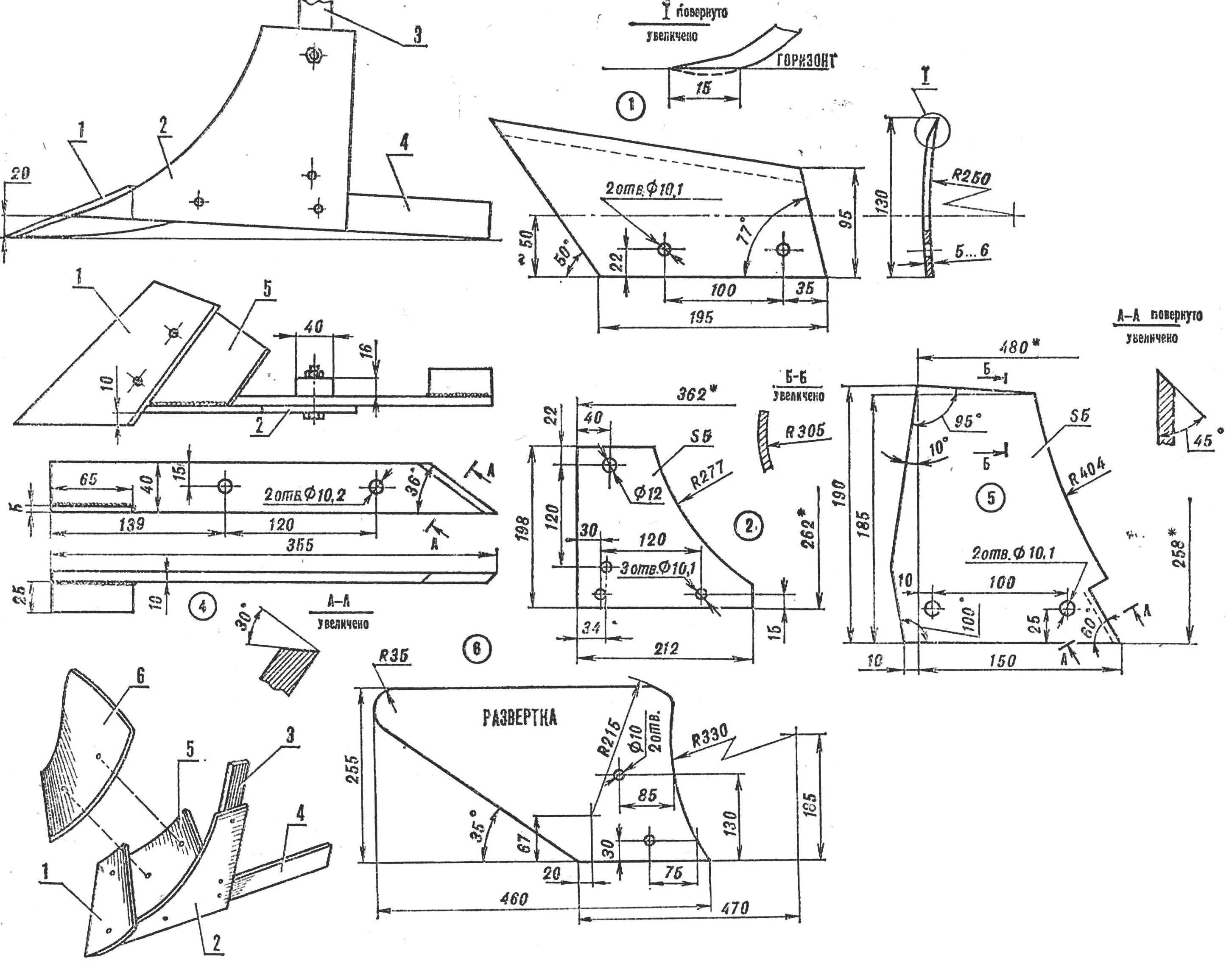
Плуг своими руками чертежи с размерами