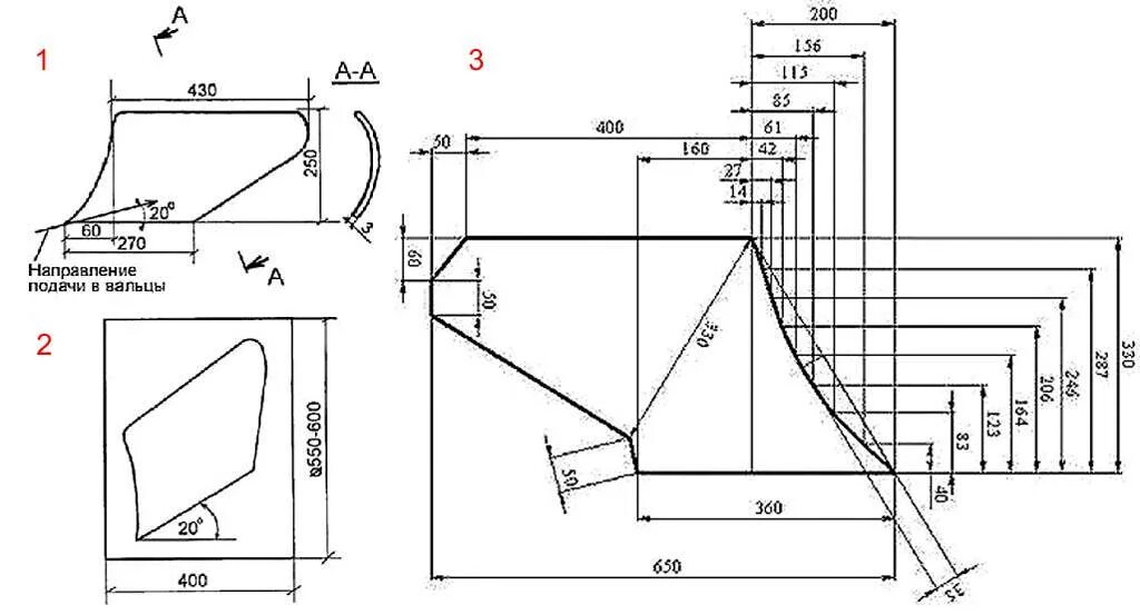
Плуг для минитрактора чертежи размеры