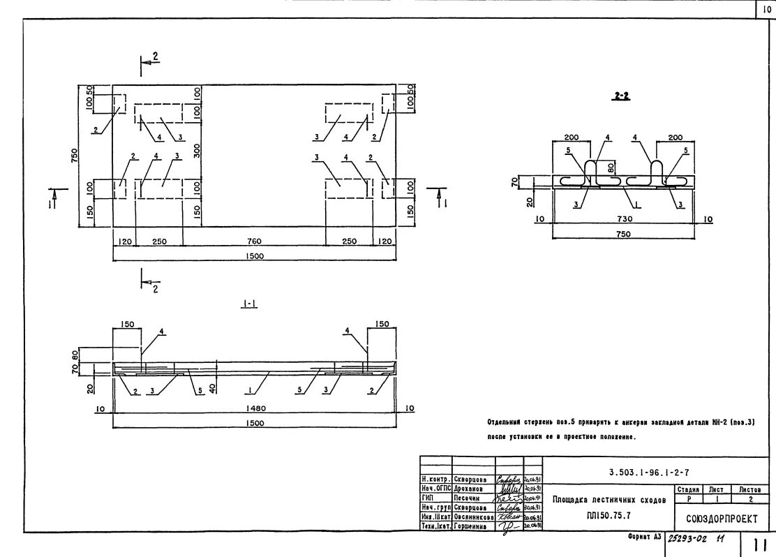
Площадка пл 2