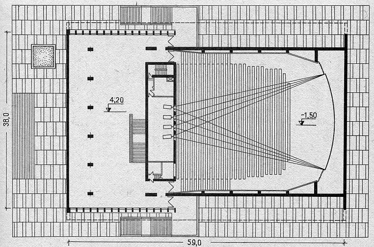
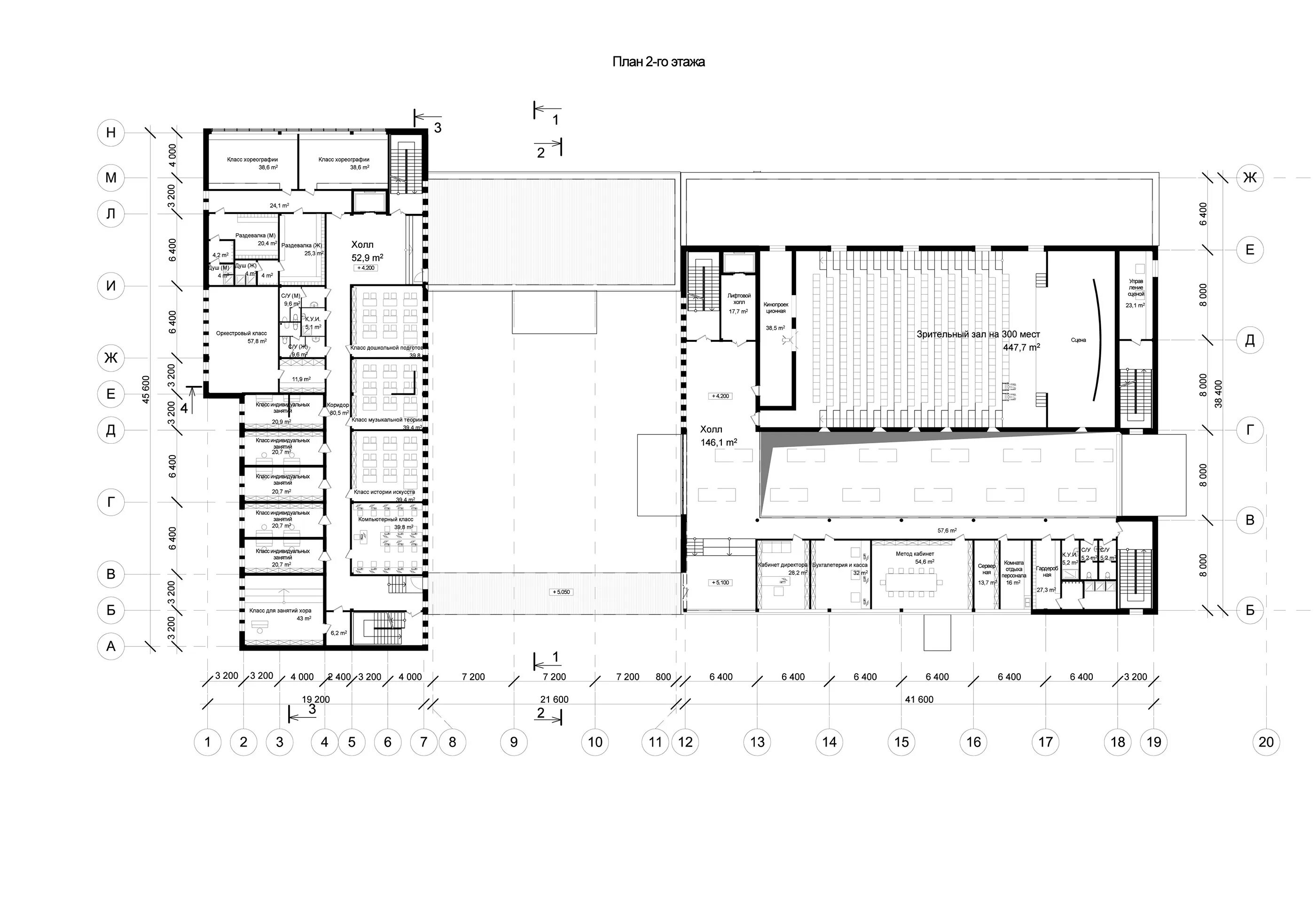
Площадь зрительного зала