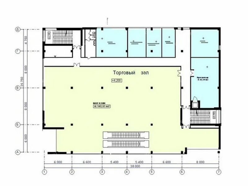
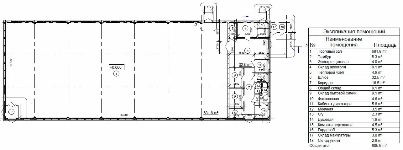
Площадь в плане м2