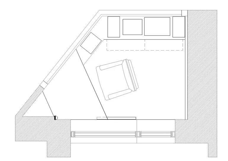
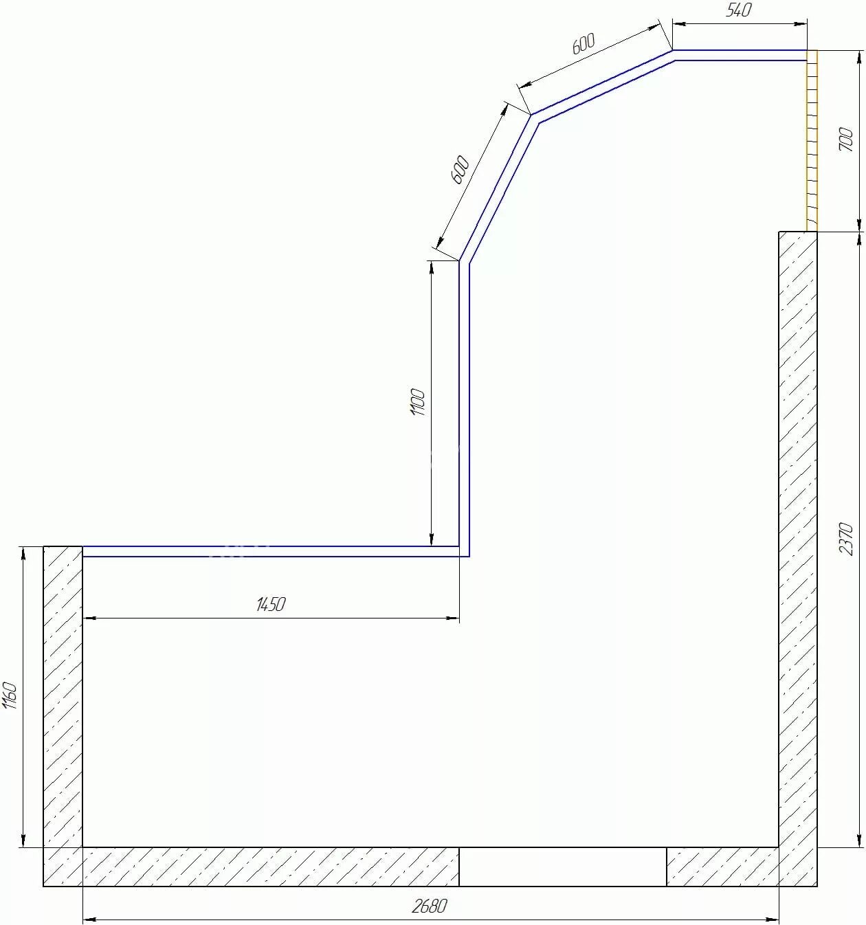
Площадь угловой лоджии