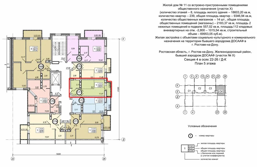
Площадь помещения определяется