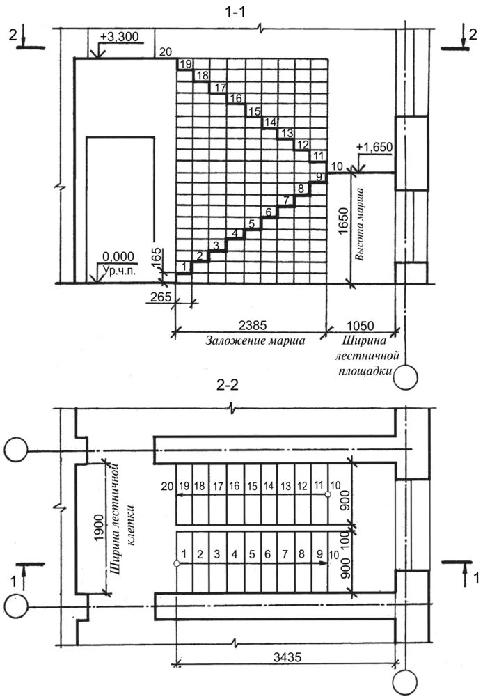
Площадь лестничных площадок