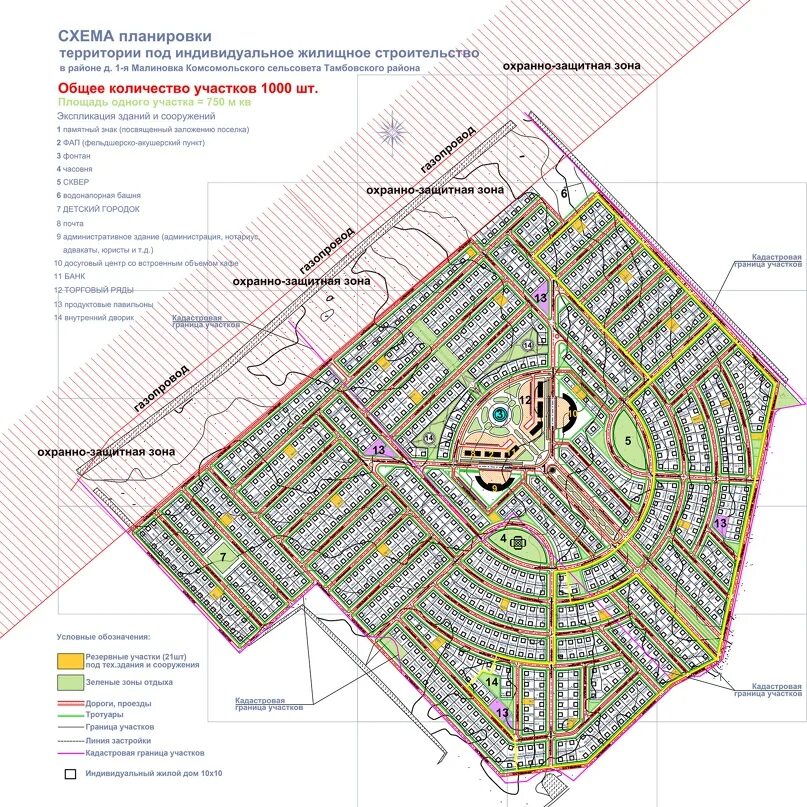
Площадь ижс