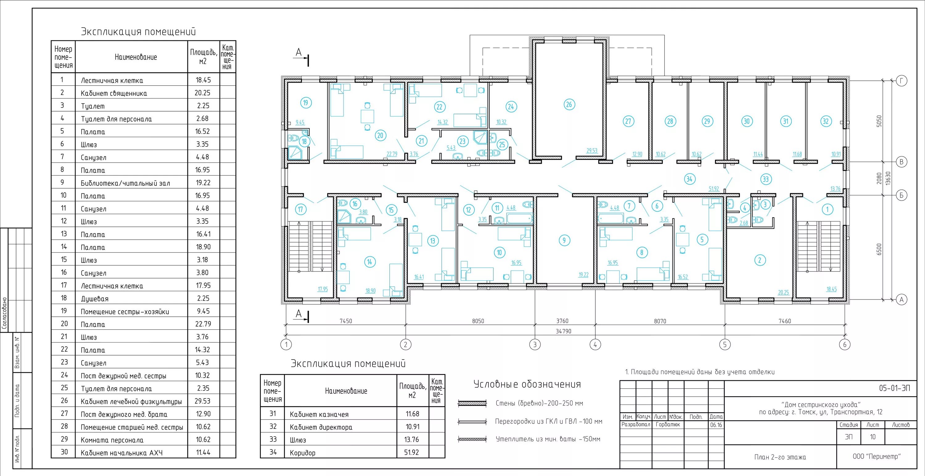
Площадь бытового помещения