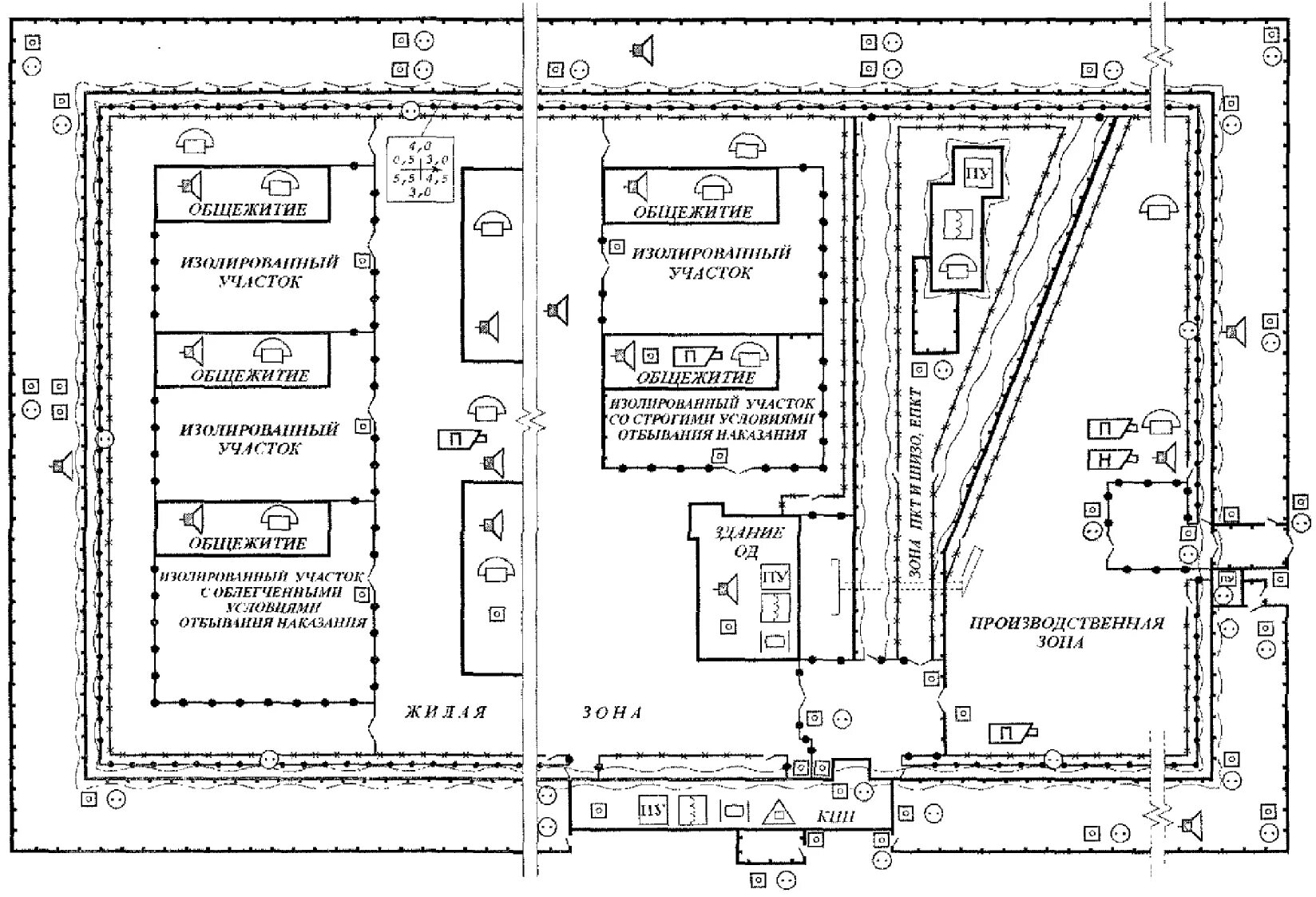
Пленум 9 вид исправительного учреждения