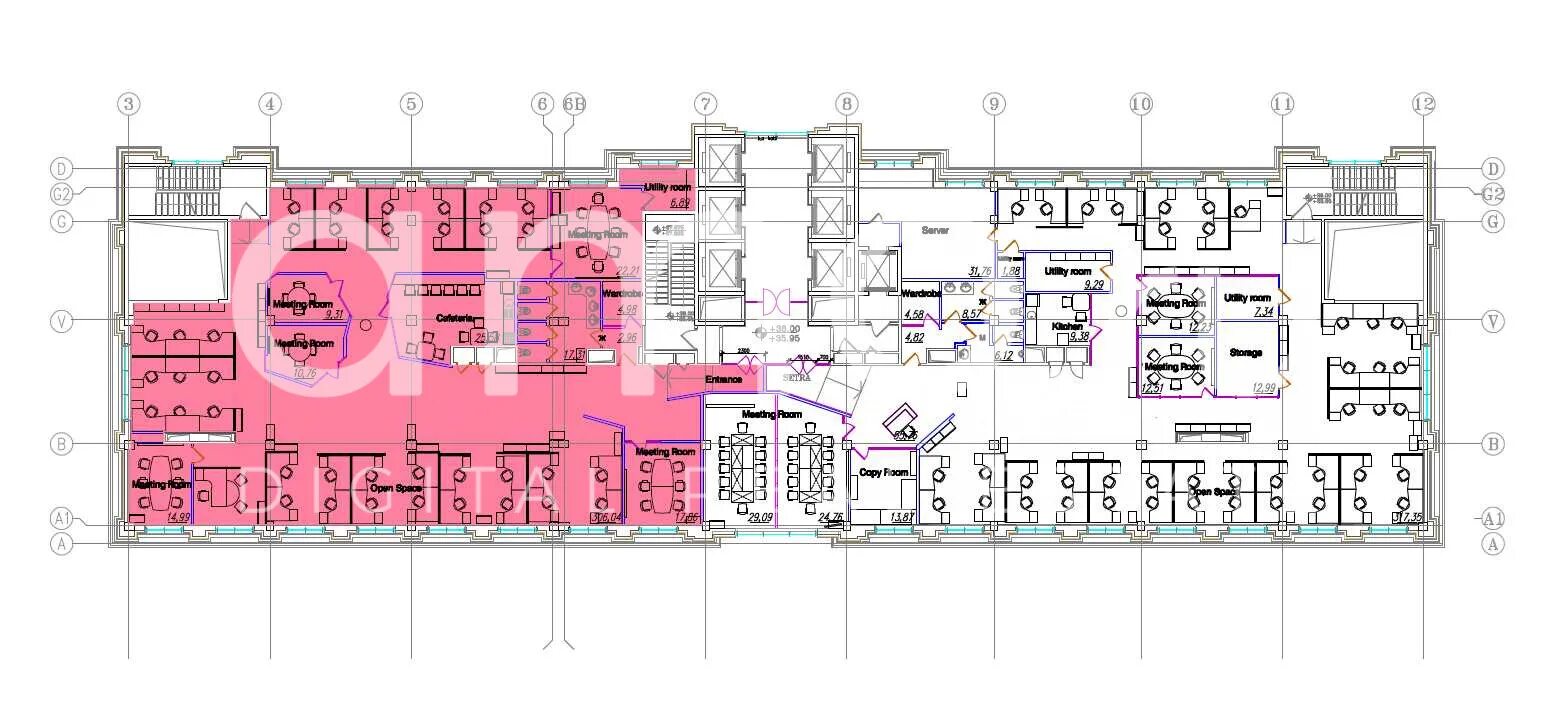
Плаза 1 этаж